【哆云】现代轻工业风

683人0 人2021-01-13 发布
现代简约・两房・100㎡・半包10万・设计费0.86万
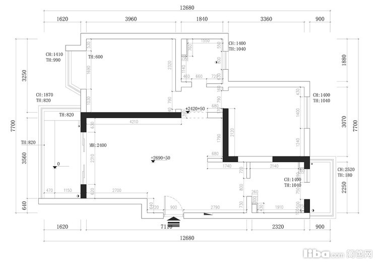
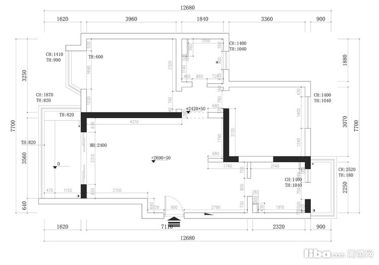
00_概述
  • 业主情况
    夫妻二人是同一个学校的人民教师,有一个4岁女儿,养老一只猫;男主教体育喜欢踢球,女主教英语,喜欢烘培
  • 装修要求
    这套房子是感情岁月的见证者。日益增加的家庭成员与空间的幽暗压迫,不得不考虑将原始空间进行一次换血改造
  • 设计理念
    现代、淳朴、自然、安静作为整个案例的关键词。这次管装修的是男主,轻工业风时尚精致质感贯穿整个风格
  • 01_客厅
    客厅空间配色在简约、素雅的灰白主基调前提下,用木色与橙色等跳跃的暖色系去做局部点缀,既不打破空间平衡,又增添了居室的温度。

    想浴缸和干湿分离,原房型两个房间门是正对的想要区分开来给彼此一些隐私。不要开放式厨房,操作空间要大

    卫生间实现三功能完全独立的格局,实现功能的最大化。北阳台打通,厨房空间被充分利用,满足日常生活需要

    沙发:北欧表情

    女儿房进门采用隐形门处理,外墙面胡桃木实木饰面裁切铺贴,高度与门缝对齐转角延伸至餐厅。

  • 02_餐厅
    入户即餐客厅,南北通透的户型,结合良好的采光环境,非常明亮舒适。整体硬装基底干练、纯粹,没有过多隔断遮挡,把活动空间充分地释放了出来。
  • 03_卧室
    卧室床头背景墙沿用餐厅胡桃木饰面,床头柜背景墙一体化设计,柜子是木工师傅现场制作的,加同色木饰面贴皮。卧室照明主要以氛围灯为主,床头起夜灯+背景氛围灯+吊顶射灯组合实现照明效果。
  • 04_厨房
    改造后的户型打通了北阳台,外扩出U型厨房,大大增加了厨房台面操作空间,满足屋主日常生活需要。
  • 05_卫生间
    改造后的卫生间格局通过干区外置方式,完成干湿分离需求,同时也改变了女儿房卧室门朝向,避免与主卧室门正对,从而很好地保障了日常生活隐私。
免费预约
已有8882人下单。预约短信将发您手机上!
复制成功
请使用浏览器自带的“分享”功能
可以把作品分享到微信及朋友圈
取消
预约提醒
亲爱的会员您**********的号码
今天已预约过20个商家已达到上限
请明天再来!