建筑设计师的【艺术家】

763人0 人2021-01-15 发布
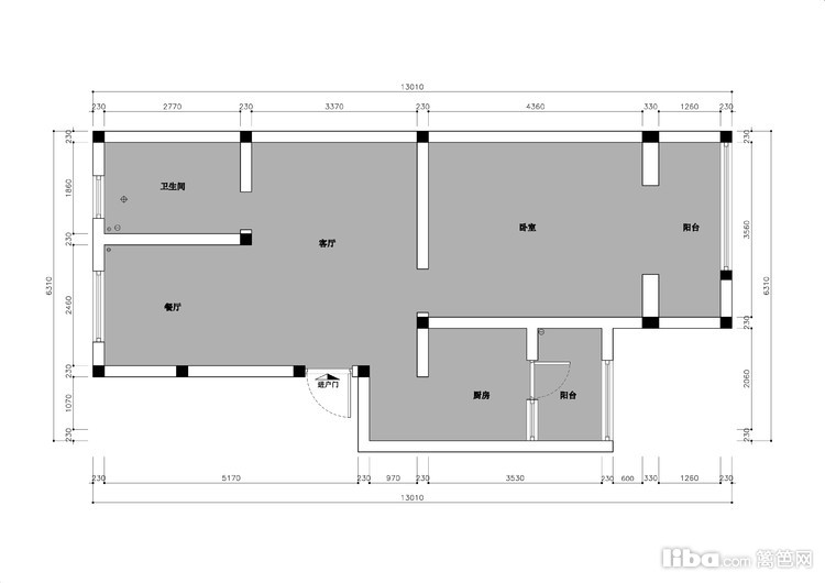
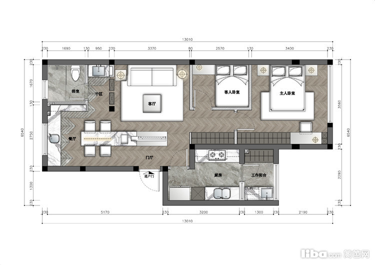
现代简约・两房・100㎡・半包10万・设计费1.8万
00_概述
  • 业主情况
    业主是建筑设计师,审美在线,非常注重建筑美学中的结构设计
  • 装修要求
    理性的思维让他们钟情于精致的冷色调,希望家里整体干净,黑白色系,现代风格
  • 设计理念
    简约主义丰富了居所的艺术气息。这种风格,至少能够创造一种诗意的生活,弥漫着沉稳寂静的力量
  • 01_客厅
    二手房改造是一次重新修整,也是对居住者自我的提升与审视,表达“不将就”的生活态度。从客厅沙发角度看,黑色电视背景墙有一种悬空居中空间感,地台做简单装饰造型,并嵌在餐桌进行空间延展

    Hall To Art “艺术殿堂”是业主想要追求的精神境界,代表着居住者的个性。

    隔断墙黑色墙板材质使用木工板打底+木饰面刷漆。

    黑色墙板没有做满,上下各留有一定空间,深色不用占据太多,保持色块比例,打造静态平衡之美且满足其功能性

    干区与客厅之间的隔断书架主要目的不是为了储物。利用了柱点承重式结构,与干区隔断,来分开两个区域的功能

  • 02_餐厅
    岩板台面+钢架桌腿组合成了餐桌,与背景墙结合。我们并加入错位设计的储物收纳抽屉,做一些简单的造型设计,增加其实用性。

    灯具、餐椅都是在TB购买的,透明材质的椅子具有良好的视觉通透性,在较小的空间可以得到很好地运用。

    餐厅艺术线型灯很好地平衡了与餐桌的比例视觉关系。

  • 03_卧室
    在全屋黑白灰主基调下,卧室咖色硬包背景墙+皮质床,丰富空间的温暖度,简约不失精致感。卧室冷灰色柜子+组合桌,将桌子跟家具组合起来,变为多功能的书桌柜。

    卧室桌子的主要功能是用来阅读、办公实用,那么将它与书柜结合起来是最好的方式。

  • 04_厨房
    厨房
  • 05_卫生间
    客餐厅的主要收纳空间,我们放在了西厨整体餐边柜中,柜子是在德禄·雷尼尔定制的。
免费预约
已有8882人下单。预约短信将发您手机上!
复制成功
请使用浏览器自带的“分享”功能
可以把作品分享到微信及朋友圈
取消
预约提醒
亲爱的会员您**********的号码
今天已预约过20个商家已达到上限
请明天再来!