装修首页
鸿鹄设计
作品库
far away130·现代
鸿鹄设计
免费预约
收藏
分享
far away130·现代
596人
0 人
2021-10-17 发布
现代简约・三房・130㎡・半包14万・设计费1.2万
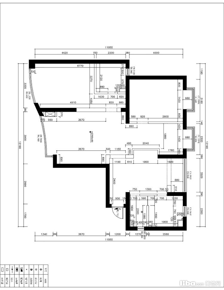
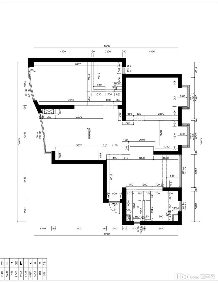
00_概述
业主情况
新婚夫妻
装修要求
平时两个人住居多, 一个书房,一个衣帽间。原户型厨房和卫生间采光偏暗,空间较小。
设计理念
改造后整个空间的行走动线,功能分区更加明确合理。
01_客厅
客厅
02_餐厅
餐厅
03_卧室
卧室
04_书房
书房
05_厨房
厨房
06_卫生间
卫生间
07_其它
其他
免费预约
已有
8884人
下单。预约短信将发您手机上!
你可能还喜欢以下作品
法式 | 复式
【万科红郡】顶楼复式
25
混搭 | 三房
【时髦复古风】
21
混搭 | 两房
【喵星人和朋友们】金奖设计
30
现代简约 | 别墅
【乐居】现代轻奢300平
14
预约
分享
收藏
返回顶部
报名成功
复制成功
请使用浏览器自带的“分享”功能
可以把作品分享到微信及朋友圈
微信好友
微信朋友圈
新浪微博
QQ空间
链接复制
取消
按钮
预约提醒
亲爱的会员
您**********的号码
今天已预约过20个商家已达到上限
请明天再来!