【拾光】学区房改造

1779人4 人2019-02-15 发布
日式・一房・60㎡・半包6.4万・设计费0.58万
00_概述
  • 业主情况
    学区房,面积较小。业主开公司平时较忙,白天由住附近的爷爷奶奶照顾。
  • 装修要求
    需求两房,储物空间充裕,卫生间功能丰富(四分离),厨房使用概率较小。需要空调地暖给孩子提供好的环境
  • 设计师
    何金池
  • 设计理念
    日系原木与中国民族设计元素相融合。提取日式风格简练,融入民族元素的古朴,和原始的色彩,追求自然、舒适
  • 01_客厅
    学区房,面积局促,但仍想给到孩子比较舒适明亮、学习阅读区。业主自己开公司平时比较忙,对于客厅的需求可以弱化,需要两个房间,满足生活基本功能做了重新划分

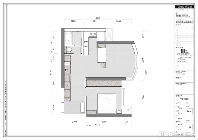
    原始户型图:1房1厅属于比较传统的小户型结构;客厅没有独立餐厅;厨房占用空间较多;卫生间挤压的很小

    平面布局设计:压缩了部分厨房空间,改为开放式;主卧移至原客厅,放下一张1.8米的床,靠墙做储物柜

    门厅与室内的划分借用了地暖的6公分高度,形成错层结构,用大理石地砖做区分,相比于地板更加便于日常清理

    与门厅相邻的走廊过道长度在3米5,为解决过道的采光问题,主卧门确保私密的情况下选择带磨砂玻璃线条

    洗衣功能区与卫生洗漱区结合设计,顶部多余空间做了一排吊柜,总体占用不到2平米,却非常具有生活实用性

  • 02_餐厅
    从左至右依次是:卫生间、厨房、餐厅、儿童房。在这个空间里,设计师想要打造的是一种“森林木屋”风格,为孩子营造出自然、淳朴的成长空间

    桌是灵活可移动的,当有朋友来聚会时,可以移至走廊过道处,最多可以容纳6人同时就餐使用。

    餐厅由左右两侧展示柜加一组餐桌椅组合而来,既是用餐区,也是孩子阅读学习的书桌,

  • 03_卧室
    在卧室是以简洁、舒适的目的去打造的,墙面与顶面没有过多地使用线条修饰,保持了最简约的状态,加入了中国民族设计元素的物品去点缀空间,追寻的是古朴、自然的居住感受。

    敞开的卧室与其他空间有了很好的互动关系,留出了充足的空间满足了小孩爱玩好动的天性

  • 04_厨房
    完全开放式的,对于每日只料理早餐的一家人来说完全不用担心油烟到处散的情况发生。白色整体橱柜定的是日本的toclas,白色墙面用的日本AICA爱克板,具有防水防污的功能,非常好清洁。
  • 05_卫生间
    卫生间的淋浴房是在TOTO定制的一套整体淋浴房,拥有淋浴与浴缸功能,浴霸、换气、下水等所有的系统都集成在这个“箱子”里,不占用过多的空间,非常具有生活实用性。
免费预约
已有8882人下单。预约短信将发您手机上!
复制成功
请使用浏览器自带的“分享”功能
可以把作品分享到微信及朋友圈
取消
预约提醒
亲爱的会员您**********的号码
今天已预约过20个商家已达到上限
请明天再来!