简约风
        	13980人1
人2023-10-28 发布
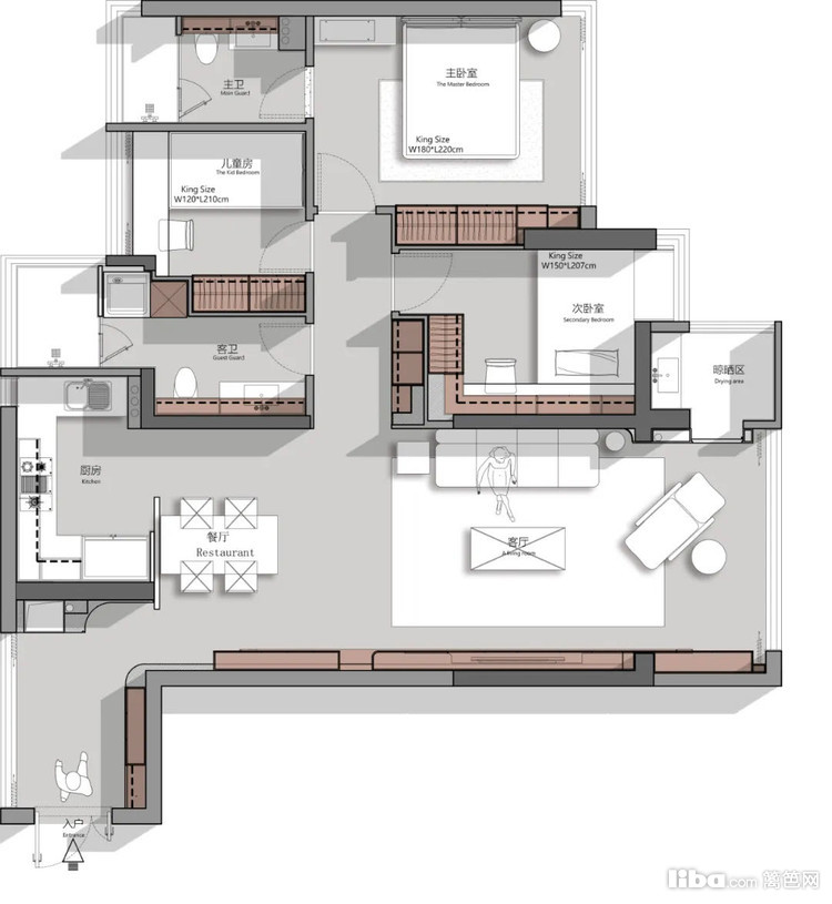
 			现代简约・三房・100㎡・半包11万・设计费0.5万
 			
 			
            	00_概述
            	
                	- 
                    	
业主情况
                    	一家三口,两代人,业主夫妻工作,平时比较忙,由业主父母带着孩子在这里居住,本套房子是为孩子上学准备的
                	 
                	- 
                    	
装修要求
                    	业主比较喜欢餐厨一体的设计,希望可以在阳台设计一个洗衣区,卫生间可以做干湿分离的设计,方便打理
                	 
					- 
						
设计师
						吴利成
					 
	                - 
	                    
设计理念
	                    原户型面积较大,空间方正,分区明显,为后续改造提供了良好基础
	                 
	            
	 		 
	 		
	 			
	                        - 
	                            
01_客厅
	                            客厅作为待客区域,以简洁明快的设计风格为主调,同时装修较其它空间要更明快光鲜,进深感强,电视背景墙的设计是整个住宅空间的亮点 ,简单的装饰材料,既简单又大方,营造出现代化空间。
	                                
	                                
	                                
	                                
	                         
	                        - 
	                            
02_餐厅
	                            餐厅的环境设计重要的就是就餐环境的营造,实际风格要与整个居室风格一致协调。
	                                
	                                
	                         
	                        - 
	                            
03_卧室
	                            卧室整体空间以浅色调为基础,顶面运用石膏板床头壁灯和筒灯,从而营造一个现代化的简单,舒适主卧空间。
	                                
	                                
	                         
	                        - 
	                            
04_其它
	                            以现代简约风格出发,尽可能不用装饰和取消多余的东西,认为任何复杂的设计,没有实用价值的特殊部件及任何装饰都会增加建筑造价,强调形式应更多地效劳于功能。
	                                
	                         
	 			
	 		 
	 		
	 			免费预约
	 			已有3175人下单。预约短信将发您手机上!