装修首页
同学之家平价施工中心
作品库
奶油风
同学之家平价施工中心
免费预约
收藏
分享
奶油风
3024人
1 人
2023-10-28 发布
低调奢华・一房・60㎡・半包5.8万
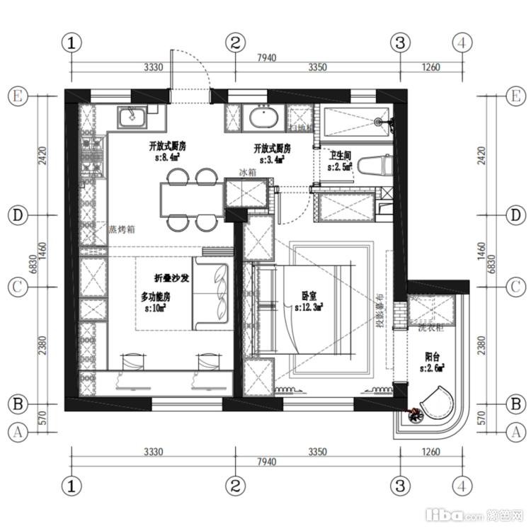
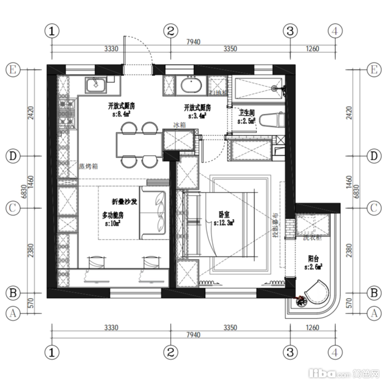
00_概述
业主情况
小年轻两人住,暂时没有小孩,非常注重生活仪式感,希望能在装修设计上营造仪式感和氛围感
装修要求
家中要通透,采光好,希望新家给人的感觉是温馨治愈的,开放式厨房
设计师
吴利成
设计理念
柔美温和+浪漫温馨的氛围,以米白色为主
01_卧室
乳胶漆颜色偏咖色,营造静谧怀旧的色调
02_厨房
在餐厅的旁边,做了一个敞开式厨房,白色的地柜和吊柜,和奶油风更搭
03_其它
整体配色搭配选用低饱和度暖色系,使整个空间更加柔和
免费预约
已有
3211人
下单。预约短信将发您手机上!
你可能还喜欢以下作品
欧式 | 一房
中古风
9
混搭 | 两房
混搭
10
法式 | 三房
轻奢法式
6
现代简约 | 三房
简约风
9
预约
分享
收藏
返回顶部
报名成功
复制成功
请使用浏览器自带的“分享”功能
可以把作品分享到微信及朋友圈
微信好友
微信朋友圈
新浪微博
QQ空间
链接复制
取消
按钮
预约提醒
亲爱的会员
您**********的号码
今天已预约过20个商家已达到上限
请明天再来!