装修首页
亦帆装饰 · 大璞空间设计
作品库
67m²手枪老房爆改奶油极简家
亦帆装饰 · 大璞空间设计
免费预约
收藏
分享
67m²手枪老房爆改奶油极简家
1429人
0 人
2023-12-01 发布
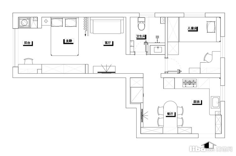
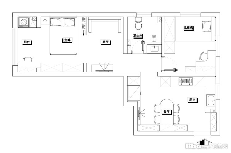
现代简约・两房・67㎡・全包14万
00_概述
业主情况
白领夫妻带着孩子,三口之家入住。
装修要求
希望新家简约时尚,明亮好打理,多增加一些收纳。同时希望能够格局通透一些。
设计理念
打通玄关、厨房、餐厅,使得空间感扩大,无论是制作美食还是和家人一起就餐聊天,都更加舒适。
01_客厅
客厅
02_餐厅
餐厅
03_卧室
卧室
04_厨房
厨房
05_卫生间
卫生间
06_其它
户型方案
免费预约
已有
22521人
下单。预约短信将发您手机上!
你可能还喜欢以下作品
低调奢华 | 别墅
350m²意式轻奢每个角落都美
30
其它 | 两房
76m²小户型就做原木奶油风吧
29
美式 | 两房
89m²美式复古家·收纳力爆棚
30
现代简约 | 三房
超赞呀!七大收纳空间的三口之家
30
预约
分享
收藏
返回顶部
报名成功
复制成功
请使用浏览器自带的“分享”功能
可以把作品分享到微信及朋友圈
微信好友
微信朋友圈
新浪微博
QQ空间
链接复制
取消
按钮
预约提醒
亲爱的会员
您**********的号码
今天已预约过20个商家已达到上限
请明天再来!