暖心天堂-105m²-美式

16860人82 人2015-07-02 发布
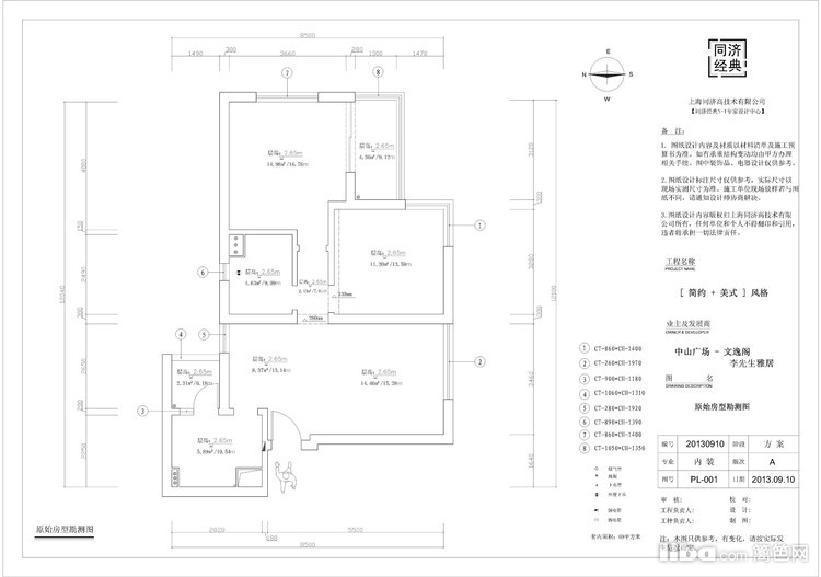
美式・两房・105㎡・全包16万・设计费0.6万
00_概述
  • 业主情况
    单身男士,长期留学澳洲
  • 装修要求
    业主偏爱优雅和惬意的空间感觉,同时希望生活各方面的需求都得到满足。
  • 设计师
    黄均儒
  • 设计理念
    本套户型设计的重点主要在于立面设计。通过护墙板、涂料、宽石膏线,来凸出层次、拉伸层高。
  • 01_客厅
    正气大方的浅色基调,给人静谧和谐之感,用优雅惬意来形容再好不过。

    正气大方的浅色基调,给人静谧和谐之感,用优雅惬意来形容再好不过。

  • 02_餐厅
    红色的桌布成了餐厅空间的亮点,呈现给大家的是大方优雅。

    红色的桌布成了餐厅空间的亮点,呈现给大家的是大方优雅。

  • 03_卧室
    卧室衣柜采用了嵌入的方式,既不占空间,也凸显出了低调的精致。与阳台隔离的玻璃移门还兼作了电视墙的功能,空间利用率大幅提升,空间视线得到了延展,实用性也得到了保障。

    与阳台隔离的玻璃移门还兼作了电视墙的功能,空间利用率大幅提升实用性也得到了保障。

    一套极简的烟灰绿床品,让卧室如同雨后的晴空,有着春天一般的青春气息。

  • 04_厨房
    厨房依然选择了美式橱柜,色泽偏深,有利于打理卫生。抬高的操作柜考虑了人体工程学,也安置了洗衣机。

    厨房依然选择了美式橱柜,色泽偏深,有利于打理卫生。抬高的操作柜考虑了人体工程学,也安置了洗衣机。

  • 05_卫生间
    维纳斯女神像优雅美丽,释放出轻灵优美的空间姿态。

    维纳斯女神像优雅美丽,释放出轻灵优美的空间姿态。

  • 06_阳台露台
    本套户型设计的重点主要在于立面设计。通过护墙板、涂料、宽石膏线,来凸出层次、拉伸层高。
  • 07_其它
    1.原来卫生间门处改为书柜,使走廊区充满文化氛围 2.墙体设计为嵌入式鞋柜,不分割客厅空间 3.工作阳台和厨房打通,空间明亮开阔,符合人体工程学的操作柜使用方便。

    1.原来卫生间门处改为书柜,使走廊区充满文化氛围 2.墙体设计为嵌入式鞋柜,不分割客厅空间

    3.工作阳台和厨房打通,空间明亮开阔,符合人体工程学的操作柜使用方便,同时也满足了清洗衣物的需求。

免费预约
已有5315人下单。预约短信将发您手机上!
复制成功
请使用浏览器自带的“分享”功能
可以把作品分享到微信及朋友圈
取消
预约提醒
亲爱的会员您**********的号码
今天已预约过20个商家已达到上限
请明天再来!