泰荣苑-122m²-简约美式

205人1 人2016-03-16 发布
美式・两房・122㎡・全包25万・设计费1万
00_概述
  • 业主情况
    一家两口
  • 装修要求
    叶先生是爱热闹的人,所以把家里的客厅餐厅相通,视觉上扩大的延伸感,喜欢追求简单温馨家居生活。
  • 设计师
    汪韵
  • 设计理念
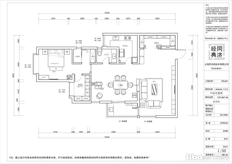
    本次装修首先对户型进行了较大幅度的改造,原有的次卧与客餐厅区域打通连成一体。
  • 01_客厅
    餐厅与客厅的相连,一目了然,增大了视觉的穿透性,坐在舒适的沙发上,彰显着现代时尚家居的质感。简单却又不失优雅的空间格调,尽显业主的品位。

    餐厅与客厅的相连,一目了然,增大了视觉的穿透性,坐在舒适的沙发上,彰显着现代时尚家居的质感。

    简单却又不失优雅的空间格调,尽显业主的品位。

    收纳柜中保留随手摆放物品的端景空间,玄关的便利度也极大的影响进出门的效率

  • 02_餐厅
    暖色灯光的照耀下,吊顶产生的光影效应映射到白色的墙漆上,营造出浪漫温馨就餐氛围,更有利于增加食欲。

    暖色灯光的照耀下,吊顶产生的光影效应映射到白色的墙漆上,营造出浪漫温馨就餐氛围,更有利于增加食欲。

  • 03_卧室
    简约的吊顶线条与白色的墙面打造出这样一间看上去极具舒适感的卧室空间,放在床头的小灯让这间卧室显得温馨至极,整间卧室的格局非常简单明了,活动面积也非常的大。

    衣帽间的纯白风格,放佛来到来一个全新的小天地,透亮的艺术玻璃镜,在灯光下,别具一番浪漫风情。

  • 04_厨房
    L型橱柜一体化,外加上下一体的橱柜设计,真正做到节省空间和增加厨房的操作面积两不误,展示收纳功能还极其强大,实属妙招!

    白色橱柜设计与白色纹理的大理石融为一体,打造出清新优雅的自然格局。

  • 05_卫生间
    这间会客用的卫生间采用的浅色瓷砖和白色的吊顶设计,使整体空间感加强。
  • 06_其它
    将餐厅区重新规划,与客厅一起形成完整的空间区域,以形成合理的布局,扩大起居室的视野范围。

    主卧的门于原先位置发生了改变,这个设计更加人性化,考虑到业主的生活习惯及空间设计布局。

    4.设计师对业主了解后,在玄关处设计了隐蔽的储藏室,有效的利用空间,让空间变得整齐大方。

免费预约
已有5315人下单。预约短信将发您手机上!
复制成功
请使用浏览器自带的“分享”功能
可以把作品分享到微信及朋友圈
取消
预约提醒
亲爱的会员您**********的号码
今天已预约过20个商家已达到上限
请明天再来!