鼎信公寓-300㎡-美式风格
162人2
人2016-03-17 发布
美式・别墅・300㎡・全包50万・设计费2.5万

-
01_客厅
客厅以稳重典雅、充满自然木质色泽的古董褐为主色,完美展现美式风格经典的造型与韵味。体现自然色彩的文化石背景墙与优美的木质线条共同构建出的电视背景墙,为整个空间增加了朴实轻快的风采。
地面的仿古拼砖、墙上探出的鹿角、石质堆砌的墙壁及燃烧的壁炉使空间显得灵活而生动。
中空客厅顶面上的吊顶,将原本错落开的客餐厅连接起来,沟通了生活动线,同时也赋予空间大气端庄的气质。
将原来直上直下的楼梯重新打造为弧形,柔和的线条将不一样的活泼及文艺注入到整个空间。
-
02_餐厅
餐厅位于整栋别墅的1F半层,与西厨一体。餐桌椅用的是较为简洁的款式,典雅而又随性。
墙上的电视调动了用餐的气氛,节目精彩与否并不是关键,重要的是全家围坐一桌其乐融融的景象。
身后便能看见挑空的客厅,从视觉上增加了餐厅的面积,显得气派不少。
-
03_卧室
主卧的布置看似简单端庄,实则融入了不少的细节。造型别致的吊顶与网格纹墙纸相呼应,又与客厅的木质吊顶形状吻合,相当精妙。
经过如此点缀,主卧空间在沉稳之中仿佛又透露出一丝英伦绅士的时尚感。
老人房的布置风格简洁却不失沉稳。一张床、一张桌子、一个衣柜,便是房间内的全部。
步入式衣帽间设计拥有强大的储藏功能。将衣物分门别类地放置,给人一种藏品陈列的成就感。
-
04_书房
书房左侧连通主卧,前方又与阳台采光通透的阳台相接。工作累了就抬头极目远眺,做一个深呼吸,健康生活的理念贯彻在这个空间中的每一个角落。
书房左侧连通主卧,前方又与阳台采光通透的阳台相接。
工作累了就抬头极目远眺,做一个深呼吸,健康生活的理念贯彻在这个空间中的每一个角落。
-
05_厨房
这套别墅中含有中厨及西厨两个厨房。西厨与餐厅一体,L型操作台功能强大,靠近窗户的一端还可以作为一个充满情趣的小吧台及陈列柜。
而中厨空间则用移门隔开以阻挡油烟。大面积窗户使其拥有着极佳的采光。
-
06_卫生间
私密的空间也拥有着极好的隔音效果,无论何时洗衣也不会打扰到家人们的休息。
这层的卫生间将洗手台移到了外边,两种不同色彩的拼砖对撞出前所未有的新奇质感
-
07_其它
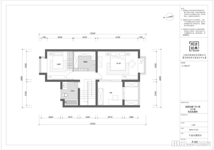
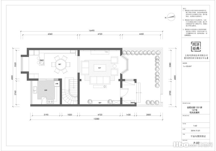
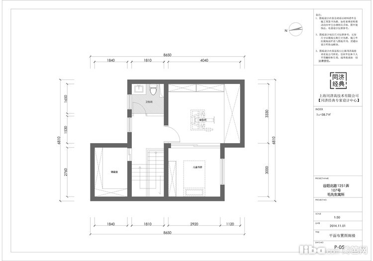
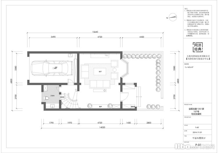
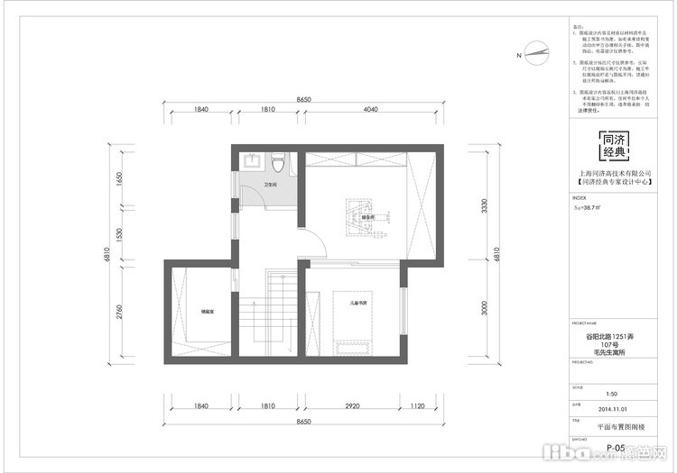
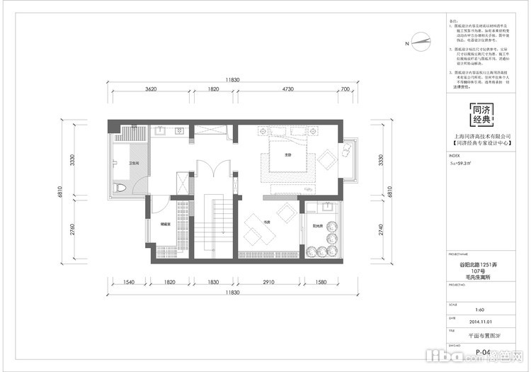
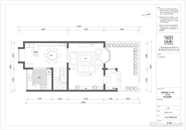
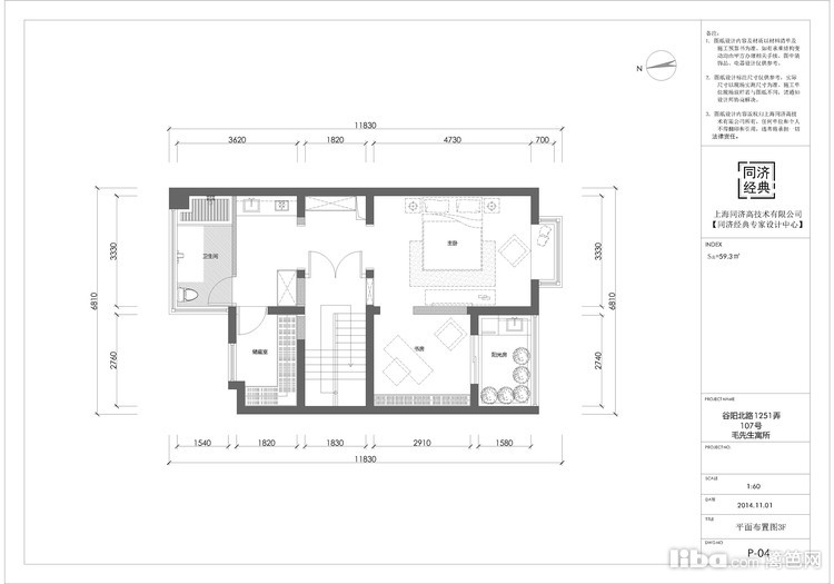
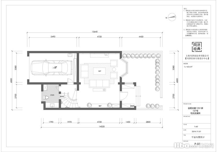
改造后户型图+方案说明,展示效果图、罗列优化项
玄关面积较大,左右各放置一个置物柜及贴心换鞋凳,充分利用了空间且人性化。
原来的楼梯呈直角,造型死板,大量占用了空间。
设计上将楼梯重新打造成极具造型感的弧形,给原本横平竖直的居室增添了一抹活跃温和的气氛。
楼梯间后的小块空间被用作卫生间,别有洞天。
底层朝北的居室光照通风相对比较欠缺,根据业主家的情况打造成一间私家车库,从此不再“抢车位”。
免费预约
已有5315人下单。预约短信将发您手机上!