温馨满格小房间

3908人2 人2024-06-06 发布
现代简约・两房・55㎡・半包6.54万
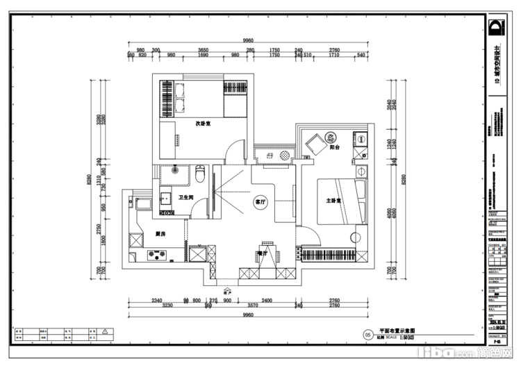
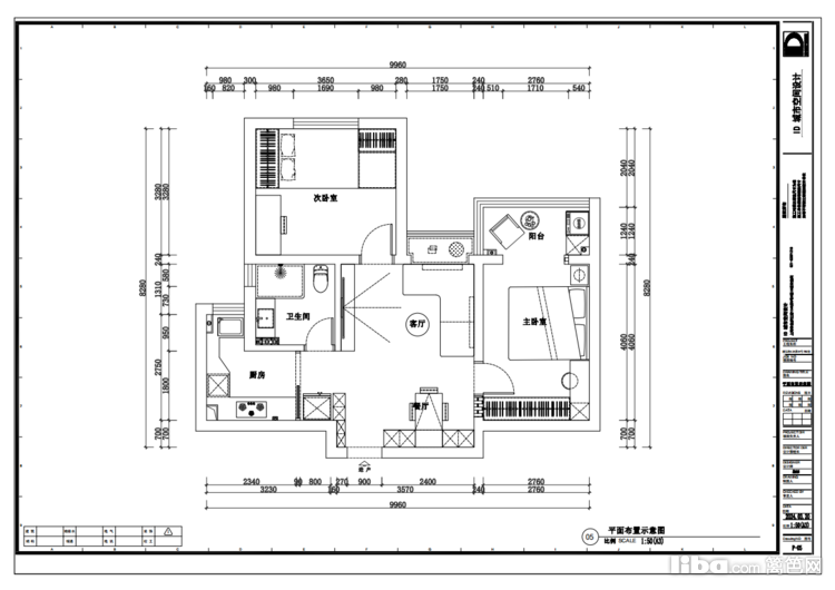
00_概述
  • 业主情况
    房子在浦东区,属于两房一厅一厨一卫,房子整体比较方正,一个缺点是厨房较小可操作使用面积较小。
  • 装修要求
    业主只需要一个正常起居的卧室,次卧则需要兼顾书房、休闲空间和偶尔的居住需求。
  • 设计理念
    这个家的设计不仅是对空间的合理利用,更是对生活品质的追求。每一个细节都融入了业主的生活习惯和需求。
  • 01_客厅
    主卧门洞的偏移设计,是整个房间布局的点睛之笔。通过调整动线,我们为主卧打造了一整排的衣柜,极大地提升了储物空间的利用效率。
  • 02_卧室
    主卧门洞的偏移设计,是整个房间布局的点睛之笔。通过调整动线,我们为主卧打造了一整排的衣柜,极大地提升了储物空间的利用效率。每一个细节的调整,都是为了实现功能与美感的和谐统一。
  • 03_书房
    既保留了书桌用于日常办公,又通过设计一个榻榻米,不仅增加了储物空间,还能在有人来访时作为临时的居住空间使用。
  • 04_厨房
    厨房一直是这个户型的一个小挑战,因为操作面积较小,业主希望增加操作台面并安装洗碗机。设计师通过异形柜和动线结合的巧妙设计,使得厨房的每一寸空间都被充分利用。
  • 05_卫生间
    卫生间的布局调整也让人眼前一亮。通过重新规划布局,使得卫生间的使用舒适性显著提高。每一个功能区都被精心设计,不仅满足了业主的基本需求。还提升了日常使用的便利性。
  • 06_其它
    这个家的设计不仅是对空间的合理利用,更是对生活品质的追求。每一个细节都融入了业主的生活习惯和需求,使得整个空间充满了温馨与舒适。
免费预约
已有52637人下单。预约短信将发您手机上!
复制成功
请使用浏览器自带的“分享”功能
可以把作品分享到微信及朋友圈
取消
预约提醒
亲爱的会员您**********的号码
今天已预约过20个商家已达到上限
请明天再来!