为父母打造的养老房,诗意之境

7556人0 人2021-05-02 发布
中式・三房・120㎡・全包21万
00_概述
  • 业主情况
    这是两套房合并后的,总面积120,买的两套老房子
  • 装修要求
    父母喜欢收藏古董,家里要有一定收纳空间 休息、阅读、观景、品茶、赏玩等功能区都要有,打造一个私人地方
  • 设计师
    戴明剑
  • 设计理念
    “圆”是中国文化的一个重要精神元素,结合现代流行元素进行大胆设计
  • 01_客厅
    客厅设计

    业主一家

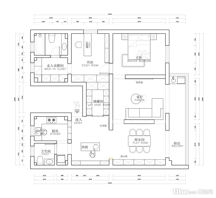
    平面布置图

    纵观客厅整体布局,无论是沙发背景墙还是电视背景墙,都很和谐对称阴阳协调

    电视背景墙巧妙藏了一道门,将空间动区和静区区分开来。

    至此,从入户到这里,所见的每一处景均属于动区。而隐形门一旦推开,便是另一处天地。

  • 02_餐厅
    餐厅设计

    水吧台将传统与现代的融合,大气与端庄的体现,就在这寥寥数笔中完成。

    进门右手边是一个储藏室,专门给业主父母收放各种珍藏品。

    空间布局上,设计师巧妙利用古玩打造餐边柜,融入线性灯和透明玻璃,让餐边柜自成一景。

    视线转向餐厅另一面墙,古色古香的文化砖一块块拼接成一面背景墙。

  • 03_卧室
    卧室设计以中国红为空间主视觉,配以沉稳的木色调作基调,浅绿色调加以辅助,契合以梅花为主题的床头硬包设计,完美地传递出主人的生活轨迹和态度。
  • 04_书房
    江流天地外,山色有无中。业主父母缱绻于温水茗茶的甘淳,也热衷于行云流水的笔触。 胡桃木家具,淡然而沉稳;同款书架,稳重而大气,这里是业主的私人书房。
  • 05_厨房
    厨房设计

    厨房用色比较现代化,灰白相间,简约大气,让厨房看起来很有质感

  • 06_卫生间
    卫生间设计

    卫生间整体灰色,令人内心得以平静。水波纹墙砖搭配水波纹洗漱台,现代新中式的浓郁气息扑面而来。

  • 07_其它
    客厅
免费预约
已有11099人下单。预约短信将发您手机上!
复制成功
请使用浏览器自带的“分享”功能
可以把作品分享到微信及朋友圈
取消
预约提醒
亲爱的会员您**********的号码
今天已预约过20个商家已达到上限
请明天再来!