“大橘橘”猫仔的完美新家!
26170人2
人2022-03-04 发布
欧式・两房・76㎡・全包21万・设计费0.6万

-
01_客厅
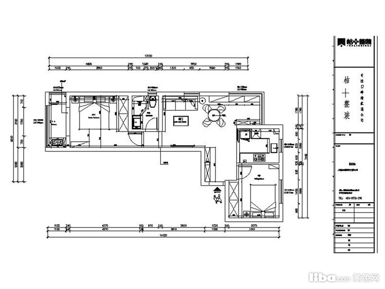
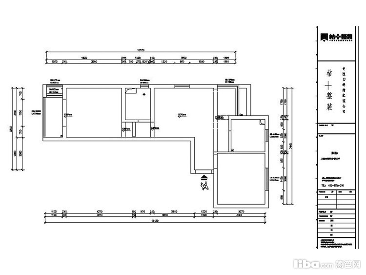
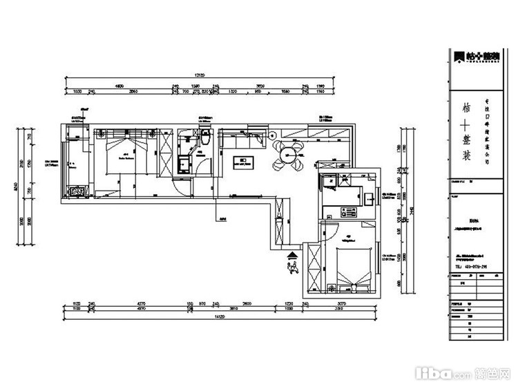
这是房子的原始户型图,经典的手枪户型!一厅一厨两房一卫,但原始房型
有很明显的几个缺陷:
1.入户无玄关,缺少收纳2.各个空间都较封闭,显得每个房间都狭小拥挤;
因为空间封闭,采光不是很好,一进家门整个屋子都是暗暗的;房内整体布置都是多年前的了,老气而陈旧。
沙发上铺了一张毯子主人跟我们说,是因为猫咪也很喜欢造访这里,这张毯子是为了防止猫咪抓破沙发皮。
客厅靠墙角放了一张皮质软沙发,同时坐下3人没问题。
整个家里是通铺了一层复合实木地板。
墙面和吊顶都处理的很简单,白墙+最简约的双眼皮吊顶,吊顶上方安装了6只筒灯补充照明。
-
02_餐厅
客餐厅打通之后,整个房间的采光也变得更好了。因为餐厅背面有一扇窗、客厅背面也带一扇窗,两扇窗共同进光,自然就亮堂起来了。
这是餐厅改造前的样子,狭小逼仄,很拥挤,所以业主小姐姐重点跟我们提出一定要改善一下这块的格局。
这里就是餐厅啦!改造后,把原本餐厅两侧的的隔墙都拆掉了,做了客餐厅一体的设计。
餐厅上方安装了一益PH5吊灯,源自丹麦设计师的一款经典吊灯,很适合简约又不失优雅的北欧风搭配使用。
-
03_卧室
改造后去掉了电视机和柜子,阳台也去掉了移门,直接跟阳台打通,整个空间变得更大气了,颜值也直线提升。
门洞做了圆角式的,很符合北欧风家的温馨气质。
卧室内自带一个阳台,采光很好,放了一张1米5的小型双人床,卧室地板依然是通铺的木地板,提升空间感。
-
04_厨房
可以看到这个厨房是一个U字型格局。U型厨房最大的优势其实就是节省空间,相对来讲,U型厨房对小户型来说是最实用的。
右边角落的柜子里,隐藏了一台热水器,柜门关起来之后不影响颜值。
厨房门安装的是三联动金属移门,透明玻璃很好擦洗,三联动移门折叠后很节省空间,几乎跟冰箱宽度一样。
收纳当然也少不了!上方柜子,打开后收纳能力还是很强的!
-
05_卫生间
整体是做了一分为二的千湿分离区,右侧马桶处位于干区,左侧淋浴处位于湿区,一扇窄窗用来通风和采光。
卫生间的一体式台盆,做了悬空设计方便清扫卫生,平时还可以在下面存放泡脚盆,省空间。
-
06_阳台露台
整个休闲区的采光也是做到了最大化处理,窗帘用的是香格里拉帘遮挡光线非常柔和,电动卷帘式设计使用起来也很方便。
长桌上摆放了一合MORRORART音响,带悬浮字幕的设计非常酷炫,旁边的夹桌合灯到夜晚时用来补光。
-
07_其它
看一下其他其余的亮点吧~
这个玄关柜的结构是上下柜体 +中间开放区,开放区的墙上做了三组五孔插座,门口做插座,方便日常使用。
改造后终于拥有了玄关柜!解决了入户收纳的问题。
左边墙上安装了一面穿衣镜,方便出门时整理仪容。
业主家可爱的喵咪~
免费预约
已有11099人下单。预约短信将发您手机上!