2胎之家的超强收纳!
68200人8
人2022-03-25 发布
现代简约・两房・107㎡・全包20万・设计费1万

-
01_客厅
因为本案户型位于一楼,相对比较潮湿,且屋主人也比较怕冷,所以是有安装地暖的。整个家里是做了叠级吊顶
改造前的客厅,阴暗潮湿,环境显得很压抑
改造后的客厅,宽敞明亮,男业主因为是外国人,比较喜欢中国的老物件。
因为本案户型位于一楼,相对比较潮湿,且屋主人也比较怕冷,所以是有安装地暖的。整个家里是做了叠级吊顶
-
02_餐厅
餐厅与厨房之间原本是有一面柜体墙隔开的,采光和空气流通都受影响。改造后,打通了隔墙,顺利解决了采光+空气流通的问题。
厨房的改造前后对比图
同时考虑业主一家人的使用需求,厨房也顺势做成了开放式,这样中西厨都包括,很适合我们业主一家人使用!
同时考虑业主一家人的使用需求,厨房也顺势做成了开放式,这样中西厨都包括,很适合我们业主一家人使用!
-
03_卧室
主卧飘窗的玻璃,换成这种超大玻璃的落地窗后,再搭配窗外的露台风景,也太有异域感了!一台超复古的收音机往这儿一放,就是说超有感觉~
主卧换成这种超大玻璃落地窗后,搭配窗外的露台风景,也太有异域感了!一台超复古收音机往这儿一放超有感觉
主卧内最大的改变,就是增加了一个步入式衣帽间,衣帽间的门,选用的是铁艺长虹玻璃艺术折叠门。
-
04_厨房
厨房改造后,做成了开放式厨房,把柜体隔墙拆掉做了一个多功能岛台,同时满足中西厨功能,岛台靠近餐桌的这一边,墙壁上还安装了一个滑轨插座,方便随时用电。
厨房间和客厅之间的吧台,改造前后对比图
厨房正面
-
05_卫生间
关于这个卫生间:作为家中的公卫,他的长度比较长,我们的设计师为了能更好地利用这里的空间,进行了巧妙的改动。
首先是完成了干湿分离,把卫生间的干区单独拿了出来,与湿区之间用了一面墙+一扇门隔开;
日式深坑浴缸,内部的弧度设计很符合人体工程学。墙上做了三层置物壁龛,放洗漱用品很方便。
湿区放了一个马桶+一个浴缸。
洗手台盆与洗衣房放在一起作为干区使用。洗手台盆整体坡面型排水,简洁美观,搭配一个水压控制水龙头
-
06_阳台露台
原阳台其实是弧形的,但圆弧型空间利用率低,为了让提高整个阳台的面积利用率,我们决定把弧形拉直。
露台的改造前后对比
露台的改造前后对比
客厅和阳台之间,选择了直接打通,做了拱形的阳台门洞+通铺木地板,门洞下方放了一个小猫咪的家。
大露台:透明玻璃围栏,防腐木地板,还有半高的白色围墙,搭配上小区热带树木,竟然有种国外度假区的错觉!
-
07_其它
玄关+走廊+衣帽间+儿童房
玄关的装修前后对比图。
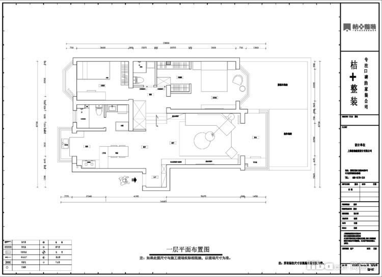
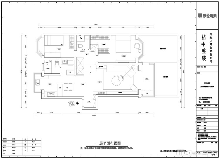
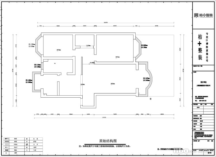
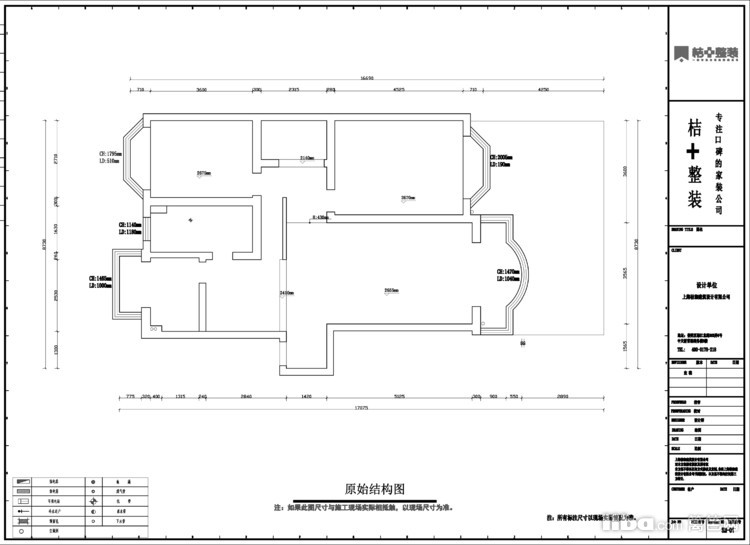
平面图-设计前
平面图-设计后
从玄关直走穿过餐厅和客厅,顺着这个走廊爬几步台阶,就到卧室了。
改造前的主卧里其实没有衣帽间,只是一个衣柜。改造后,则拥有了一个步入式衣帽间+侧边衣柜。
儿童房为了能保证两个孩子能一起使用书桌,安装了一张挂墙式长桌,桌面长度达2米,完全够两个孩子一起学习
主卧通向对面的儿童房的走廊
进门就是一面穿衣镜,穿衣镜下方放了一张换鞋凳。这面镜子和换鞋凳,都是业主家的老家具
儿童房为了能保证两个孩子能一起使用书桌,安装了一张挂墙式长桌,桌面长度达2米,完全够两个孩子一起学习
免费预约
已有11099人下单。预约短信将发您手机上!