90平旧房爆改奶油复古法式屋

12498人3 人2022-09-14 发布
法式・两房・90㎡・全包18.5万・设计费1万
00_概述
  • 业主情况
    屋主是一对热爱生活的甜蜜夫妻,有两只胖胖的猫主子,马上步入人生的下一阶段,即将成为三口之家。
  • 装修要求
    希望有一个独立安静的工作间。 客厅采光不好,希望改善室内采光。 卫生间做到干湿分离。
  • 设计师
    徐甜
  • 设计理念
    空间以白色碰撞少量的复古色、复古绿、珊瑚红,即优雅又浪漫。
  • 01_客厅
    客餐厅一体的开放式布局,宽敞自在,整个空间轻盈、灵动、惬意自在。

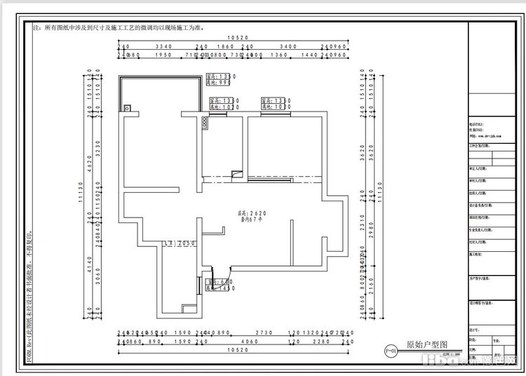
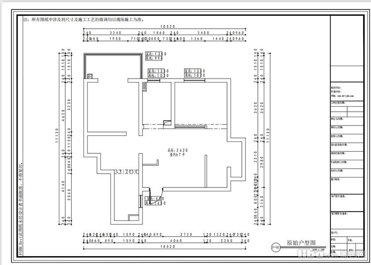
    1、之前的户型图可以看到次卧是封闭,导致客厅采光不好,光线昏暗。 2、卫生间没有做干湿分离。

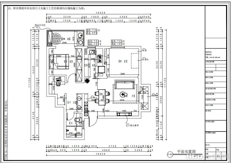
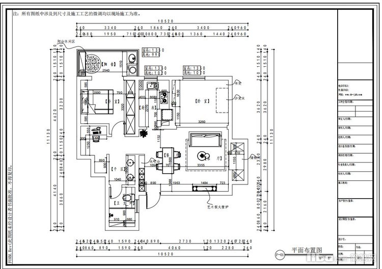
    1、设计师把原餐厅的空间一部分让给了卫生间,把卫生间做干湿分离。 2、餐厅和客厅做了一体的空间。

    玄关的对面就是餐厅,客餐厅是一体的。 除了卫生间和厨房,都是通铺木地板。

    拱形壁炉、精致雕花、石膏线条,经典的法式元素贯穿全屋,墙面统一的法式线条,营造出轻法式的精致

    壁炉柜台面和中间部分可以用来储物,圆拱的造型很法式,外部轮廓的造型简洁现代。

    米色棉麻沙发+原木色木地板,简约而又理性的空间,橘色的毛巾毯点缀,即温馨又舒适。

  • 02_餐厅
    餐椅选用的是木质和亚克力的搭配。独特的贝壳造型,搭配靠背和坐面的镂空感线条,设计感满满,实木材质搭配不锈钢脚架,轻盈优雅。

    潘东椅流线的外形搭配pv透明材质,颜值超高。坐感很好,跟腰背处完美贴合。

    餐厅的这款飞碟灯真的很漂亮,氛围感强,木制感加上暖色灯,整一个高级感。

  • 03_卧室
    卧室内浅浅的绿色,低饱和度的色彩更加助眠。

    挂上抹茶绿色的窗帘,搭配白墙和原木色地板简约又温馨。

    沙发的后面就是客房,客房平时使用频率不高,做了开方式卧室。

    之前次卧是封闭的,客厅的采光不好,为了满足业主采光好的需求,做了玻璃折叠门。

    阳台区域选用胡萝卜色的小花砖,温暖明亮,但又不扎眼。

    黑色木制的床很配这个卧室,床头包豪斯质感的吊顶提升空间的复古感。

    半弧形门洞视觉上划分空间,让原本呆板的墙面多了些许生机。

    衣柜整体风格简约,颜色介于暖白和纯白之间,主卧一门到顶定制柜,收纳的同时也不会积灰。

  • 04_厨房
    顶天立地的绿色系橱柜,颜值真的就一个字“绝”复古高级又耐看,橱柜把手是最具有复古色彩的金色,白色的石英石台面与绿色很搭,厨房墙砖是长方形白砖,底下配上复古小花砖,视觉拉伸。

    大单盆的水槽+抽拉式的水龙头真好用~台面小的不推荐双槽,不实用还比单槽占地方。

    厨房我们做的是上轨道的仓谷门,不占空间,也可以避免推拉门轨道的藏污纳垢。

    关上仓谷门,和客餐厅风格融合的统一,简单又高级。

  • 05_卫生间
    出了卧室就是卫生间,卫生间整体透漏着一种温馨又复古的感觉。

    卫生间干区墙面珊瑚红色彩浓郁,看起来明艳有活力,中间加黑色腰线,搭配白色让人很舒适。

    黄铜的水龙头做点缀增添了精致感,弧形的壁挂镜,复古中带着浪漫气质,黑色的浴室柜搭配金色把扣太好看了。

    地砖用黑白配色的小方砖,整体空间简约时髦有活力不要太好哦。湿区的门选用超白长虹玻璃门,透光不透人。

    马桶上方安置了毛巾架,可以放浴巾、衣服。旁边利用墙面做了收纳台面,放置沐浴用品,十分方便。

    旁边还放了猫猫的厕。淋浴区域地面设置暗排水槽,美观好用不积水。

  • 06_阳台露台
    阳台区域做了迷你洗手池,洗烘一体机,也不需要晾晒衣物。

    阳台区域做了迷你洗手池,洗烘一体机,也不需要晾晒衣物。

    放了一张小书桌,以后就是小朋友的学习区啦。

  • 07_其它
    入门即是玄关,塑造了一个从工作到家的空间转换的感觉,一进门就被家的氛围所包围。 收纳设计是一个家装修的重点,设计这款玄关鞋帽餐边一体柜,又能当入门玄关,又能当鞋帽柜,还能当餐边柜。

    咖啡机下面的抽屉正好放一些咖啡胶囊。这种顺手能取的东西,大到小家电,都可以收纳到柜子里。

    采用极简的白色平面门板和木质色调结合,浅浅的特别柔和,展现空间的温和与清新感。

    考虑到屋主的收纳需求,我们做了隐形的储藏间。

    还有一处很可爱的地方,就是小猫咪也有自己的小门。猫猫来去自由,再也不用半夜起来开门啦。

免费预约
已有11099人下单。预约短信将发您手机上!
复制成功
请使用浏览器自带的“分享”功能
可以把作品分享到微信及朋友圈
取消
预约提醒
亲爱的会员您**********的号码
今天已预约过20个商家已达到上限
请明天再来!