220m²简现代风美爆了!

869人0 人2022-09-27 发布
现代简约・别墅・220㎡・全包56.8万・设计费1万
00_概述
  • 业主情况
    本期的屋主是一个教育机构的创始人,有两个孩子,一家三口居住。
  • 装修要求
    业主喜欢极简和从容的生活方式,认为不花里胡哨的装修设计,往往可以轻松的长久居住。
  • 设计师
    戴明剑
  • 设计理念
    本案采用大面积的白色艺术涂料,木色和水晶、玻璃做点缀,横平竖直的空间,即简约又不失乏味。
  • 01_客厅
    本案采用大面积的白色艺术涂料,木色和水晶、玻璃做点缀,横平竖直的空间,即简约又不失乏味。

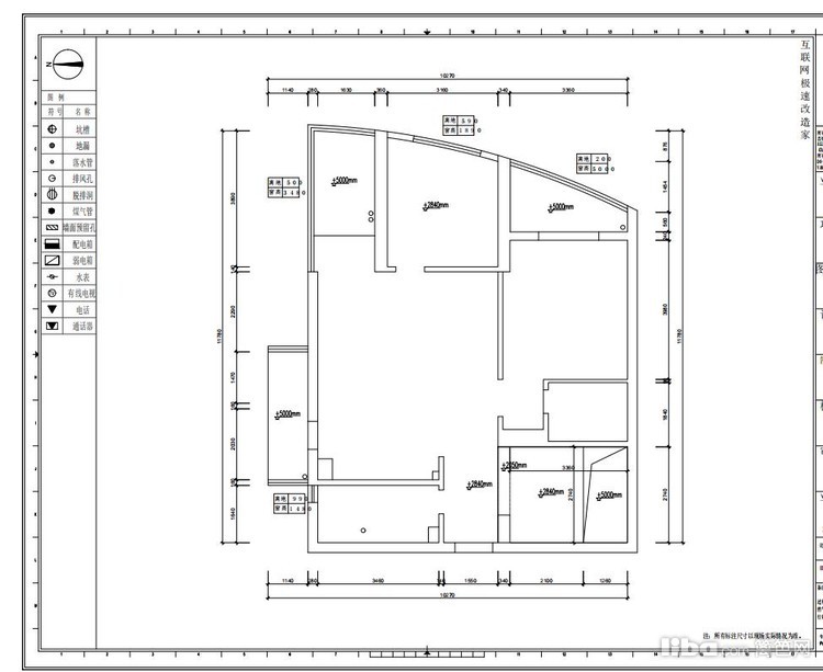
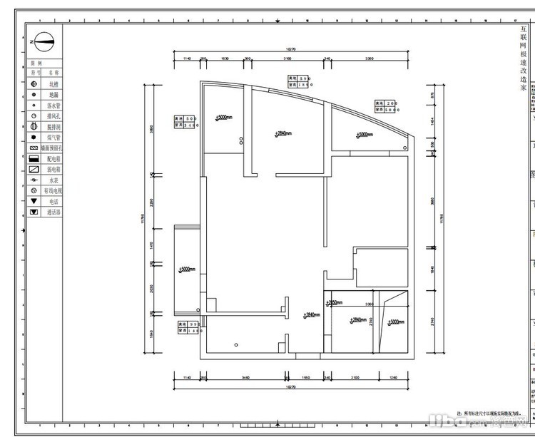
    改造前户型 1、二楼梯在入户右边,生活动线不合理2、厨房和餐厅距离远、动线不便利 3、厨房收纳空间小

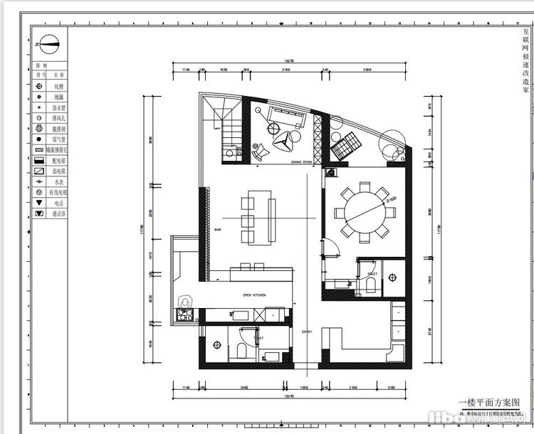
    改造后: 把生活空间转移二楼,提高私密性,打通房间和客厅,做读书角。整体采光提高,客厅空间变大。

    入户的右手边室一个定制的玄关柜,玄关中间做了开放格设计,可以摆放装饰物和一些实用的物品。

    打开玄关柜,高柜用来收纳换季的鞋子,下面做了四层隔板,柜体底部抬高30cm放置常换的鞋子。

    全屋灰木色地板通铺,搭配大量白色使整个空间明亮通透。

    特别喜欢木质板给人的温馨感,加上以假乱真的鱼骨拼地板,简单又高级。

    客厅整个空间的灯光采用轨道射灯和筒灯及水晶灯组合搭配。

  • 02_餐厅
    客餐厅就是一个多功能厅,平时不放东西,常态空间宽裕。多功能厅根据需求随时切换用途。

    餐桌区域难免杂乱,也难免懒惰,有时候不能即使清理,餐桌后面的整面墙做了通顶收纳柜,放日常用品。

    定制的多功能储物柜,极简的咖色线条搭配纹理玻璃,内置灯带充满氛围感。

    抽屉的收纳功能最强,零碎的小物件放抽屉里最合适了。

    华丽的复古水晶吊灯,搭配极简装修。

    水晶吊灯因为材质的特殊性,所以折射率更高,营造的氛围感更强,兼具了设计和功能,呈现经典的高贵优雅

  • 03_卧室
    一楼没有卧室,改造成了会客室~

    推开极简的白框玻璃门进去就是待客休闲区啦。

    一进门旁边就是客房的卫生间,方便来访客人的使用。

    咖色的双人沙发,白色的茶几,一盆绿植,和室外的空间调性统一一致。

    女业主十分喜欢看书,这个房间也放了一个白色书架,放满了书。

    整个空间非常舒适具有包容性,给客人轻松愉快的氛围。

  • 04_厨房
    厨房因为墙体是承重墙无法改动,灶台和盛菜区做了弧形设计,利用人体工程学的原理改善了空间,灰白色系的橱柜简约高级感满满,白色的墙面搭配灰白色柜体和灰色的台面简约又耐看。

    餐桌旁就是厨房间啦

    吊顶采用的是防水石膏吊灯,整体没有拼接缝,四周与墙体收口更极简,看起来非常美观。

    燃气热水器区域做了吊柜遮盖水管燃气,看起来美观。其他地方没有做吊柜,空间不压抑

    大单盆的洗菜池,锅碗瓢盆都可以一次性放进去使用起来十分方便。

  • 05_卫生间
    进门左手边就是干湿分离的卫生间,进门出门洗手很方便。入墙式水龙头美观的同时节省空间也便于清理。超长的一体式岩板台盆,简约大气,不存在台盆接缝,卫生方便打扫。

    台盆深度比较深,水不容易喷溅。镂空的设计可以放置扫地机没有卫生死角。整面的玻璃镜让视觉空间变大。

    入墙式水龙头美观的同时节省空间也

  • 06_阳台露台
    阳台区域和客厅打通连成一个空间,做成了读书角。

    整面墙的玻璃镜,让空间加倍,幸福感加倍。铺上瑜伽垫就是运动区利用率Max!

    白色的书架上摆满了书籍,白色的双人座椅,悠然又舒适,拉开窗帘阳光洒进来,静下心来慢慢读一本好书

  • 07_其它
    这就是通往二楼的楼梯,下期我们再介绍两楼吧。
免费预约
已有11099人下单。预约短信将发您手机上!
复制成功
请使用浏览器自带的“分享”功能
可以把作品分享到微信及朋友圈
取消
预约提醒
亲爱的会员您**********的号码
今天已预约过20个商家已达到上限
请明天再来!