130m²打造高品质现代家

1644人2 人2022-12-03 发布
现代简约・两房・130㎡・全包21万・设计费1万
00_概述
  • 业主情况
    介绍一下今天的屋主,业主是海外留学生,今年回国新买的二手房。
  • 装修要求
    房子的要求很高,审美也非常在线,对房子的态度就是“讲究“不“将就“。
  • 设计理念
    我们设计的首要目标在于满足屋主生活的基本需要以及个人风格喜好。
  • 01_客厅
    业主需求:需要玄关,让客厅视觉有层次感,增加隐私性,要有一个安静的书房,可以办公可以躺着书,要有一个大大的客厅,舒服的沙发看电视,喜欢做西餐,想要一个开放式厨房。

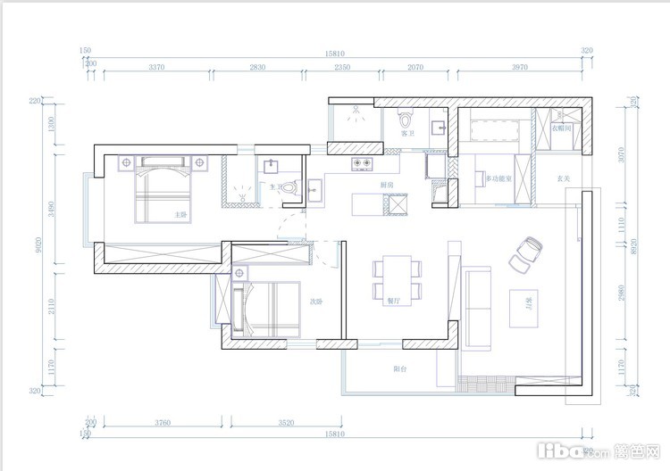
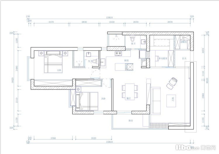
    前屋主是三代同堂的大家庭,格局就是老套的长走廊式三房两厅两卫、厨房小、采光差

    我们设计的首要目标在于满足屋主生活的基本需要以及个人风格喜好。我们来看一看设计师都改造了哪里吧?

    进门的右手边是玄关柜,旁边这副立体的几何装饰画是屋主在画展上淘回来的,和房屋的调性很搭呢。

    成年人的快乐无非就是下班回家后有一个地方可以一个人放松放松,可以看书、玩游戏、办公的空间。

    客厅用无主灯,营造通透、温馨的休闲空间。将电视内嵌至整个背景墙里,提前隐藏布置好线路。

    咖色的沙发非常大气,躺在上面看电视舒服到飞起来。搭配花纹大地毯,点缀高级而有质感的空间层次。

    这个大理石茶几一眼看上去就很特别,进口天然大理石的结合,使得这款茶几极其个性,更像艺术品的存在。

    细直的木纹背景墙极简又轻奢,不再是千篇一律冷冰冰的岩板。左边定制了悬空的玻璃柜搭配内嵌灯带

    整个房屋是智能家居,我们在装修前就预留好零火线,安装智能家居,灯光、空调、电动窗帘等都能联动起来

    分享下这个玻璃柜,灯亮的那一刻摆个塑料袋都贼好看。切记一定要提前预留好电源。

    客厅展示柜一门到顶+内嵌灯带真的超级耐看,高级灰搭配隐框透明玻璃门,给人若隐若现的美感,高级感拉满。

  • 02_餐厅
    餐厅百叶窗拉开就是阳台,空间光线一点也不会暗沉。墙面上挂了一幅装饰画,就餐的同时心情也很愉悦,这就是一日三餐四季的快乐吧。

    白色得岩板餐桌对比大理石有很多优点,好打理是关键,耐磨不怕剐蹭不怕烫,油污什么的也很好擦掉。

  • 03_卧室
    卧室满墙的定制柜,这个柜子是个多功能柜。顶天立地,上面不会积灰,下面没有卫生死角,收纳空间也是满分。

    走出主卧,旁边就是次卧啦。

    磨砂绒布的材质,非常高级,手感光滑柔软。跟肤感磨砂的材质完全不同更温暖有温度没有冷冰冰的感觉。

    一个布衣的收纳筐,十分实用,换下来的衣服扔进去,这个真的好用。

    电视内嵌在柜子里,特别美观,内嵌的电视在安装前,一定要量好尺寸,安装好电路哦。

    次卧是同样绒布质感的床头柜,搭配木地板自带温度。拉开窗帘,阳光洒进来,瞬间暖洋洋的。

    同样的长虹玻璃柜门,若隐若现自带时髦感,挑选衣物十分方便。顶天立地的收纳柜,同样收纳空间满分。

    抽屉式书桌,收纳桌面杂物,保持干净整洁,内侧的开放格可以摆放常看的书籍,上面的玻璃柜陈列装饰品。

  • 04_厨房
    一个L型设计的厨房,操作动线十分流畅。实用性很强,按照洗菜,切菜备菜,炒菜合理安排,做饭时候一点也不会手忙脚乱。做好放到我们的岛台上,完美。

    被问爆了的橱柜颜色,博洛纳灰类似于奶油灰,搭配白色的台面干净好看,内嵌的洗碗机,去家务化。

    做免拉手设计,上柜下挂1cm,下柜斜切45度角,方便美观。吊柜下面做玻璃收纳柜,收纳常用的调味品。

    餐厅的承重柱让人手足无措?我家的设计师“变废为宝”巧做岛台。承重柱上壁挂直饮机。

    做水电的时候提前开槽,完全看不到水管和电线。岛台台面还可以做操作台,下面满满的收纳空间。

    大单槽简约实用,用惯了双槽的姐妹,可以加上洗菜盆或者沥水篮一秒变双盆,洗锅的时候可以收起来。

    这边安装内嵌的双开门冰箱,和齐平的玻璃酒柜,实用性和美观性都在线。

  • 05_卫生间
    往里走就是客卫,这里之前是厨房和储物间。现在改造成客卫,干湿分离,左边是淋浴区,右边是电动马桶,这里一定要记得安装插座,不然马桶都没地方插电。

    主卧里还有室内卫生间,超大的浴室柜,可供两人一起使用,下面开放格搭配抽屉收纳功能强大并且很实用。

    黑色金属的淋浴头带有喷枪,美观实用。用喷枪冲洗地面简单方便。

  • 06_阳台露台
    沙发旁有个小门进去就是晾晒区,定制了一个洗手池洗洗涮涮很方便,内嵌的洗衣机,节省空间,旁边摆放了屋主最喜欢的自行车。

    阳台上面是全自动的晾衣架,洗完的衣物也有地方晾晒,日常使用更方便啦!

免费预约
已有11099人下单。预约短信将发您手机上!
复制成功
请使用浏览器自带的“分享”功能
可以把作品分享到微信及朋友圈
取消
预约提醒
亲爱的会员您**********的号码
今天已预约过20个商家已达到上限
请明天再来!