89㎡老房逆袭,原木小家超温馨

2143人0 人2023-02-28 发布
日式・两房・89㎡・全包14万・设计费1万
00_概述
  • 业主情况
    业主是一对小夫妻,有一个孩子,和父母一起同住。 这个房子是为了孩子上学买的,方便孩子上学。
  • 装修要求
    屋主喜欢奶油原木风,特别注重收纳储物空间,之前的房屋空间感觉比较局促,客厅空间小,屋内采光差。
  • 设计师
    朱文昊
  • 设计理念
    改善采光的同时,增加更多的收纳空间,全屋使用了大量暖色调为家里增添朴实无华的舒适感。
  • 01_客厅
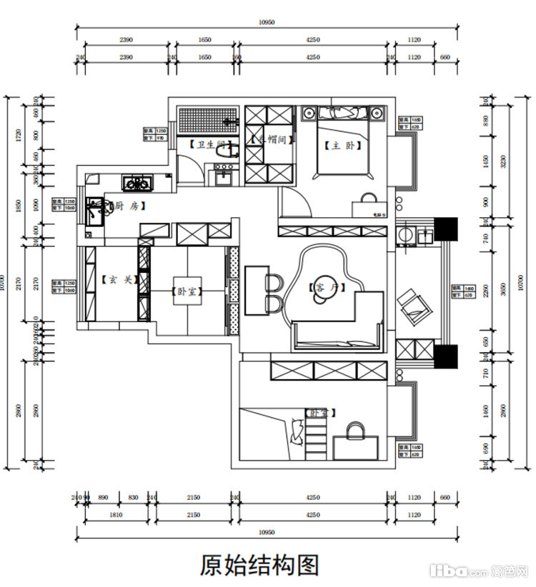
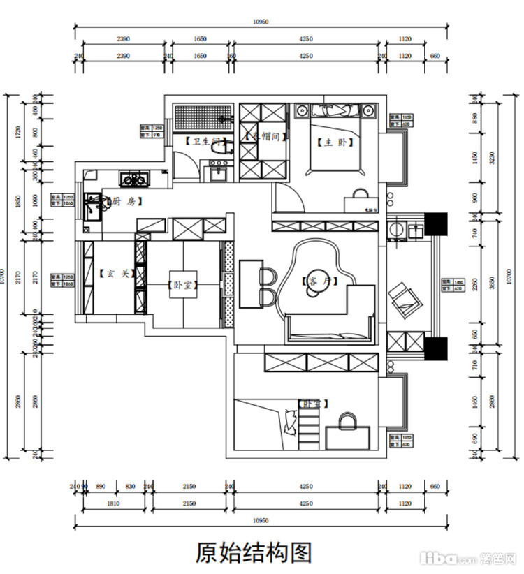
    客餐厅一体的设计空间视觉显得更大,采光也不会收到影响。 哑光白+原木搭配清新淡雅,白色也显得空间大。 小空间的客厅可以选择业主这个满墙的隐形电视柜

    改造亮点: 1把原来厨房区域改造成一个封闭的榻榻米休闲卧室 2卫生间外移增加空间,改成干湿分离

    3把原玄关旁边的卧室打掉改成客餐一体,增大了客厅的空间

    简约大方有质感,还能把客厅杂物通通藏进去。 所有的柜门都是无拉手设计,简单利落不显杂乱

    业主没有安装电视机,在上面预留了空间,安装投影幕布,节约了不少的空间。

    反弹器隐形又美观。拱形的玻璃门造型即美观,拿取东西也方便。

  • 02_餐厅
    因为客餐厅开间窄,所以设计了卡座。靠墙一侧设计成固定的卡座,可多人连坐。 卡座放上舒服的坐垫,既是休息座位底下也能打开储物,一举两得。

    红色和白色小樱桃的餐垫给平淡的生活增添一丝色彩,注入一丝甜味。

    餐厅上方的吊灯很特别,是纯手工 编织的灯罩,清新素雅和屋里的风格特别搭。

    餐边柜分上中下三层,上方摆放自己喜欢的杯子或摆件,中间摆放一些电器,下边储存日常用的生活用品。

  • 03_卧室
    开这个隐形门就是主卧,整个空间的色调依旧是小清新。木质的地板和床,这个床头的背景墙颜色很漂亮,淡淡的粉橘色,和木质材质很搭,给人一种暖暖的氛围感。

    这个飘窗软包是女主人在小红书上种草的,奶fufu的颜值高坐上去也特别舒服

    上面安装了一个电动窗帘,家里是洗烘一体机不用担心滴水的问题,有些内衣想要晒晒太阳杀杀菌。

  • 04_书房
    这里就是儿童房啦,小男孩的房间选择蓝色和白色搭配。一门到顶的满墙衣柜,可以收纳小孩子超多的衣物。

    打开楼梯抽屉满满的收纳空间,每一个空间都不浪费。

    儿童房的床是上下铺,天蓝色的床照型活泼可爱,楼梯还有收纳功能。

    打开楼梯抽屉满满的收纳空间,每一个空间都不浪费。

    开放格这里放满了可可爱爱的卡通小人,童心满满,和小朋友一样可爱。

  • 05_厨房
    厨房的风格和卫生间是统一的,小花砖搭配淡绿色的橱柜,网红小白格瓷砖清新淡雅。

    抹茶绿色调的橱柜,极简的边框,耐看又小清新。L型的厨房设计,把洗切烹菜区都规划的美美的。

    洗菜区靠着窗户,光线相当充足,而且操作空间还很大。

  • 06_卫生间
    餐边柜旁边就是拱形门,卫生间做了干湿分离。 清新的小花砖搭配粉绿方块和白色方砖打造一个温柔的奶油风卫生间。

    左边是一门到顶的收纳柜,上面放囤货,下面是嵌入式的洗烘一体机。

    洗脸盆是一体式的,实用方便也美观。水龙头是可抽拉式的水龙头,清洁台盆死角方便洗头也很方便。

    这边是浴室柜,旁边做了侧边的多层开放格,可以放好多洗簌用的瓶瓶罐罐,另一侧也不浪费做了收纳空间。

    推开门就是马桶区,在选购电动马桶之前要考虑自己的需求,不一定越复杂的越好哦。

    最里面就是淋浴区啦,里面好多小细节。简约的置物架收纳洗浴用品,黑色的淋浴器和浅色的色调还是挺搭的。

    玻璃隔断分隔湿区,再也不怕洗澡水外溅啦

  • 07_阳台露台
    这个位置原来是厨房,我们改造成榻榻米多功能房。为什么改成榻榻米空间呢?原因是业主想要回家就会有放松的感觉,不喜欢之前进榻门就是材米油盐。

    榻榻米的收纳功能超级强大,可以说是小户型的经典搭配。它集休息、储物、玩耍的多功能房,显得精致又温馨。

    门到顶大衣柜真的高级又实用,看似平平无奇整面衣柜,一打开就是收纳的新天地啦!

    考虑到储物功能,里面的床箱设计了十个上翻的储物格。

  • 08_其它
    房子是一梯一户的,玄关柜放在外面。入户进门,看到黄色的小花地垫和喜庆的新年装饰花束,洋溢着生活的气息。

    玄关还是很有必要放一块地垫的,一直觉得地毯和装饰品是超能软化一个空间硬度的存在啦。

免费预约
已有11099人下单。预约短信将发您手机上!
复制成功
请使用浏览器自带的“分享”功能
可以把作品分享到微信及朋友圈
取消
预约提醒
亲爱的会员您**********的号码
今天已预约过20个商家已达到上限
请明天再来!