71㎡二手学区房爆改轻法式

3659人0 人2023-07-05 发布
法式・两房・71㎡・全包14万
00_概述
  • 业主情况
    本次案例是老房翻新,二十年前的装修,不合理的布局使得屋主一家的日常生活受到了不小的影响。
  • 装修要求
    女屋主喜欢优雅精致的轻法式风格,而小朋友希望自己的房间可以有特色一点。
  • 设计师
    沈心怡
  • 设计理念
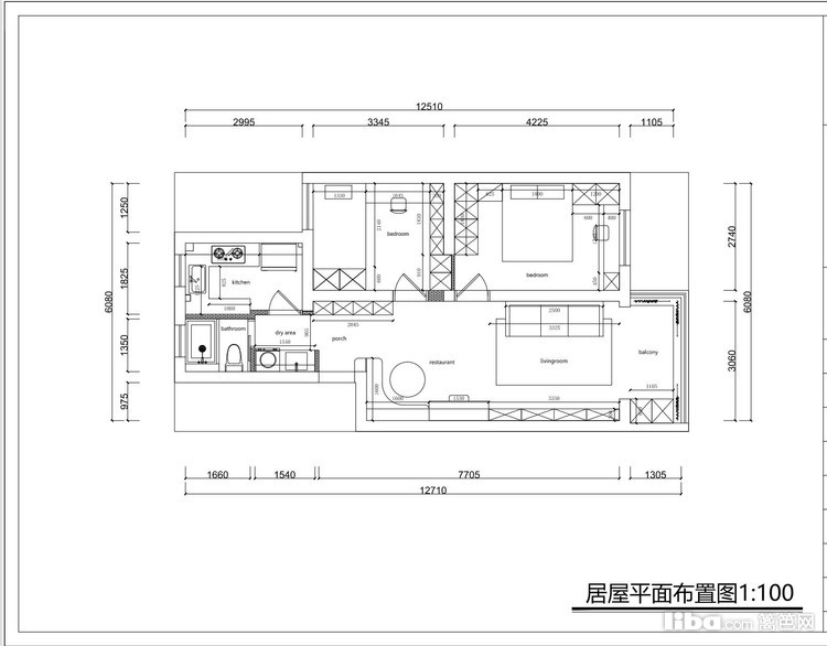
    将入户左侧门框拆除打通,做开放式洗手区,干湿分离为湿区释放更多空间
  • 01_客厅
    之前客厅的猪肝色地板显的空间不够明亮,改用人字拼法,不但立体感强,还具有拉伸空间的效果,视觉上更具动感,顺光铺设宽敞舒服。

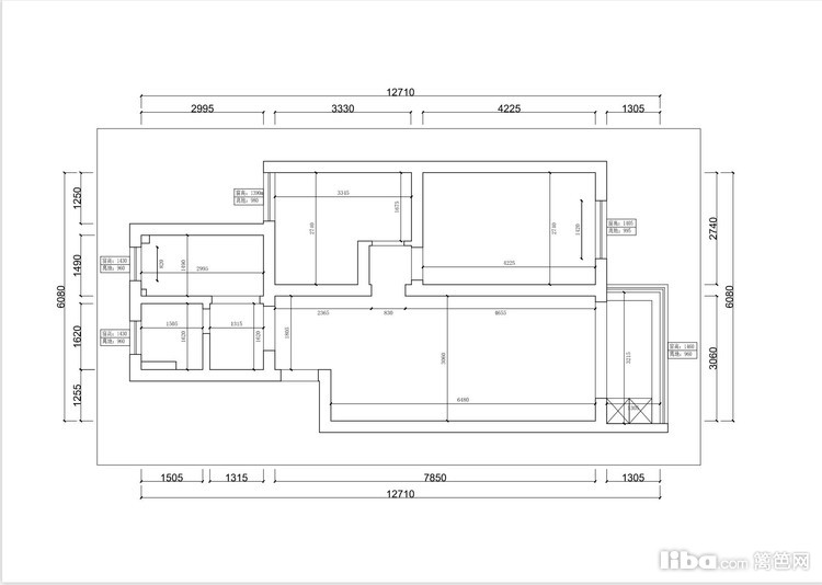
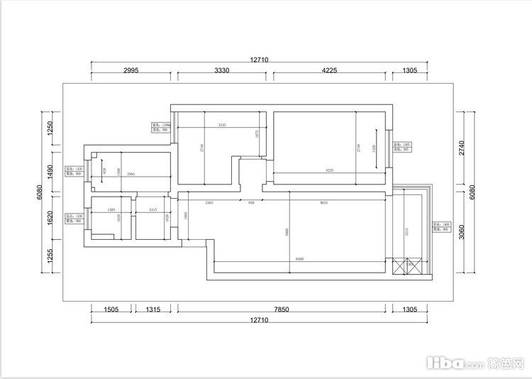
    ▲户型解析:两室一厅的格局,装修年限较长,风格老旧。 室内墙体过多,整体布局逼仄压抑,使得采光不好

    ▲改造亮点:将入户左侧门框拆除打通,做开放式洗手区,干湿分离为湿区释放更多空间

    入户玄关处原本是有一扇移门将厨房、卫生间和客厅区分开的,使得一进门看到的都是门……并且显得很拥挤。

    原本的鞋柜也很小,根本放不了几双鞋,无法满足一家三口的日常需求。

    设计师将移门和门洞都拆除,做开放式的设计,使得空间更加通透明亮。

    拆除原先阳台处的移门,地板通铺,在视觉上扩大客厅的空间,凸显整体空间的明亮简约。

    弧形拱门的设计,拉开法式浪漫的基调。

    橙色皮质沙发,在奶油色为主的空间里非常亮眼,自然的形成空间重心。

    加上背景墙上的石膏线装饰,提升了整个空间的层次感和丰富性。

    餐厅旁安排拱形壁龛,嵌入钢琴,搭配花草纹墙纸,营造出优雅浪漫的氛围感。

  • 02_餐厅
    餐边柜采用白色搭配复古红,和玄关区域相呼应。添加柔和的拱形元素,中和红色的冲击感。

    因为餐厅区域小,屋主的原木餐桌选用的可伸缩款,家里来人做客时也有富余空间。

    瓦西里椅的经典造型,天然编藤的元素加上温润的木质色调,搭配整体空间显得更具设计感。

  • 03_卧室
    主卧以素雅的白色为主调,舒适的黑色皮质床,自然的成为了空间的视觉中心。 背景墙的石膏线条为空间增添了层次感,和优雅的韵味。

    进门处做L型的白色通顶定制柜,提升储物空间。简约造型的床头吊灯。

    筒灯+吊灯+吊顶灯带,专业的灯光设计,让简约的空间也可以拥有很多层次和变化。

    专属女主人的梳妆台,悬浮设计不占地面空间,打扫卫生更轻松,还给人一种轻盈的感觉。

    儿童房整体以蓝色系为主,墙面上的火箭、星球、星星,营造出像宇宙一样的感觉。

    连灯具也是星球的形状,小朋友这是准备长大了做宇航员吗~

    和书桌连在一起的一体式定制柜,白+蓝配色和整个氛围保持统一。

  • 04_厨房
    厨房做了U型设计,使用动线流畅。灯光方面配置了筒灯,摒弃传统集成吊顶的拼接感,打造出简洁干净的氛围感。

    厨房整体以白色+黑色为主,干练的配色却不会显得生硬,这就要归功于橱柜细节处的设计了。

    厨房移门选择极窄的细丰字格,和黑金厨房配色很搭。

    台面采用岩板材质,不仅花纹好看,好清理,还耐用,耐磕碰。

    大尺寸柔光砖,减少瓷砖接缝,对于厨房这样的重油烟的地方,清理卫生死角更加简单方便。

  • 05_卫生间
    拆除原本的门框后,做半开放式设计,中间采用窄边玻璃做隔断,保持空间流通。 卫生间做了干湿分离设计,将干区外置,黑色+金色的搭配,会更具复古的意味。

    镜柜+挂墙置物架+台下一体盆+吊顶储物柜,收纳和美观并存。

    嵌入式的洗烘机和吊柜组合在一起,收纳、洗衣两不误,提升小空间的使用率。

    淋浴区没有做传统的入门式设计,而是简单的使用窄玻璃做半格挡,地面做下沉式设计,避免地面水蔓延。

    利用墙面空间做壁龛,增加收纳空间,比起在墙上安装收纳架,壁龛收纳看起来会更整齐美观一些。

免费预约
已有11099人下单。预约短信将发您手机上!
复制成功
请使用浏览器自带的“分享”功能
可以把作品分享到微信及朋友圈
取消
预约提醒
亲爱的会员您**********的号码
今天已预约过20个商家已达到上限
请明天再来!