打造舒适的85㎡loft奶油家

3284人1 人2024-01-11 发布
法式・复式・85㎡・全包13万
00_概述
  • 业主情况
    本次案例是一套loft,上下两层套内面积 85m,咱业主夫妻俩买来当婚房用的。
  • 装修要求
    1.客厅不做挑空设计,空间使用率要高;2.卫生间干湿分离,实用性强颜值高;3.整体空间要明亮通透!
  • 设计师
    黄佳平
  • 设计理念
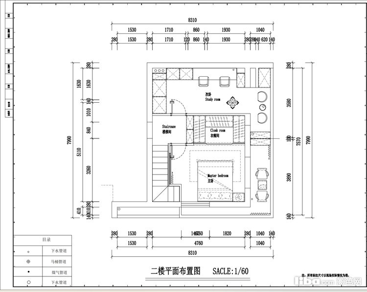
    1.根据业主的需求,我们放弃挑空客厅,采用上下层设计,打造动区静区分离,提高空间使用率。
  • 01_客厅
    根据业主的需求,我们放弃挑空客厅,采用上下层设计,打造动区、静区分离,提高空间使用率。 整体用低饱和度的配色来展现奶油风的氛围感,营造明亮通透的家居空间。

    卫生间做干湿分离,利用“玻璃砖+半弧形”元素来提升颜值和氛围感!

    厨房改成开放式布局,餐厨一体设计,空间显大又通透。

    玄关鞋柜与楼梯一体化的设计,大大增加了收纳空间。

    楼梯下转角空间可别浪费,做个这种楼梯柜可太适合小户型loft了,几平米的空间可以压榨出一间房的收纳!

    客厅大面积铺设低饱和度的配色,搭配百叶帘显得整个空间大气又温柔,光影之间尽显浪漫氛围感!

    自带“百搭”属性的茶几组合,黑白搭配成为小户型客厅的点缀,分开当边几和床头柜也很适配!

    高低错落的设计,圆润的弧面线条,让客厅不会显得呆板,反而增加了一些灵动性。

    楼梯采用玻璃作栏杆,实木作扶手,楼梯搭配暖黄色灯带,这该死的氛围感一整个拿捏住!

  • 02_卧室
    奶油风的卧室明亮又温柔,搭配暖色的灯光更显氛围感,有种高档民宿的即视感!

    整个卧室空间以奶油白+原木色系为基调,满满的治愈感扑面而来!

    拱形门圆润的弧度削低了冷硬感,看上去比较柔软,整个主卧空间尽显大气高级。

    咱就是说谁能抵抗这样的奶油风卧室啊?简洁纯粹温柔治愈,一整个被吸引!

  • 03_书房
    做成多功能房,根据咱业主的爱好做成集阅读区和办公区为一体,收纳空间和利用率都得到了大大的提升。

    书柜的这一角落,是由沙发和满墙柜布置出的阅读区。

    另一边是办公区,满墙柜连接双人书桌,夫妻俩同时办公都不会拥挤,长桌的悬空设计可真挺哇塞的!

  • 04_厨房
    厨房改成开放式布局后,更加显大显通透,整体动线合理舒适。

    依然是奶白色+原木色配色,更显温柔质感!大落地窗采光好,使整体空间有了更大的延伸感!

    最大程度释放台面空间,所有物品能上墙就上墙,刀具也有自己的独居空间。

    餐厨一体的设计,岛台作为厨房和客厅的隔断,既充当着咱业主夫妻俩的休闲区,又可当做备菜区!

    岛台左侧还有超大储物柜,厨房储物又翻一倍,咱业主私藏的酒水都能往里摆。

  • 05_卫生间
    原户型卫生间面积过于狭小,于是借用入户过道面积设置洗漱区,空间利用率满分!

    干区采用“玻璃砖+半弧形”元素,隔断墙和门洞的造型真是太惊艳了

    原木色镜柜搭配白色陶瓷一体盆,加上暖光灯的点缀,妥妥一个氛围感营造大师!

    壁挂式推拉镜,小仙女的化妆神器!洗完澡在这护个肤都很翔,十倍高清双面镜,化妆再也不会“下重手”!

    如厕区和淋浴区用玻璃作隔断,置物台花洒+即热式马桶,是高品质生活的家庭必备单品!

    湿区墙砖地砖同色系,浅色在视觉上更加通透开阔显大,让浴室看起来更加干净整洁。

  • 06_阳台露台
    承认吧!你也羡慕了这大阳台! 打通了客厅后做了定制柜,连父母见了都夸,简单又高级!

    右侧容纳洗烘套装,因为想要更多的收纳空间,所以留了不少储物,这下家里的清洁杂物都有容身之所了。

    左侧安排了家政柜,还不忘给扫地机器人留个“家”,自动上下水的装置解放了咱业主的双手

  • 07_其它
    承认吧!你也羡慕了这大阳台!
免费预约
已有11099人下单。预约短信将发您手机上!
复制成功
请使用浏览器自带的“分享”功能
可以把作品分享到微信及朋友圈
取消
预约提醒
亲爱的会员您**********的号码
今天已预约过20个商家已达到上限
请明天再来!