装修首页
林微空间设计
作品库
金枫美地-日式
林微空间设计
免费预约
收藏
分享
金枫美地-日式
3007人
3 人
2018-07-12 发布
日式・三房・113㎡・全包15万・设计费0.67万
00_概述
业主情况
三代五口人一起生活
装修要求
装修已经近十年了 想要重新装修下 喜欢日式风格
设计师
林微
设计理念
天然质材是日式风格中最具特点的部分,贯穿在整个房间的设计布局中,配以几件方正规矩的家居显出主人宁静致
01_客厅
客厅
02_餐厅
餐厅
03_卧室
卧室
04_阳台露台
阳台
05_其它
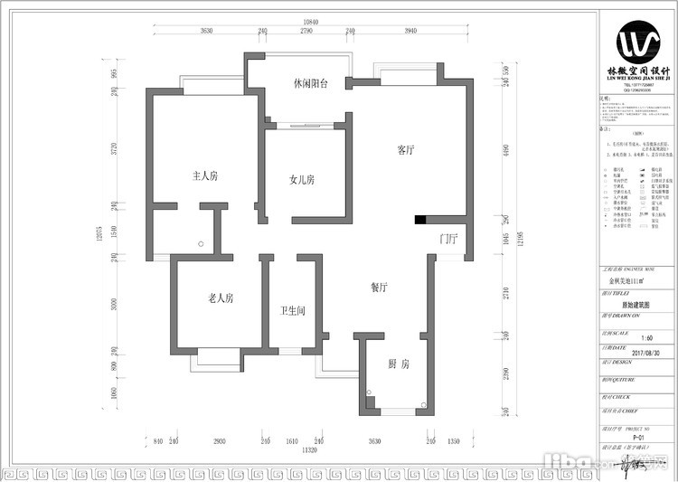
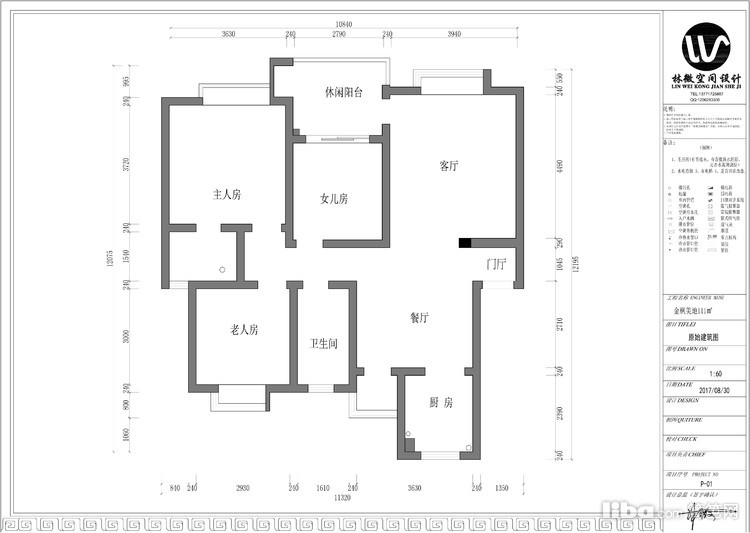
平面图
免费预约
已有
33人
下单。预约短信将发您手机上!
你可能还喜欢以下作品
现代简约 | 其它
天之运花园| 所遇皆温柔
12
中式 | 其它
光线与情感交融
10
日式 | 三房
碧桂园十里江南|归心诗意栖所
9
其它 | 两房
优公馆|等风也等你
8
预约
分享
收藏
返回顶部
报名成功
复制成功
请使用浏览器自带的“分享”功能
可以把作品分享到微信及朋友圈
微信好友
微信朋友圈
新浪微博
QQ空间
链接复制
取消
按钮
预约提醒
亲爱的会员
您**********的号码
今天已预约过20个商家已达到上限
请明天再来!