装修首页
欧坊国际设计
作品库
如梦初醒
欧坊国际设计
免费预约
收藏
分享
如梦初醒
608人
3 人
2017-03-22 发布
美式・三房・145㎡・全包24.4万・设计费1万
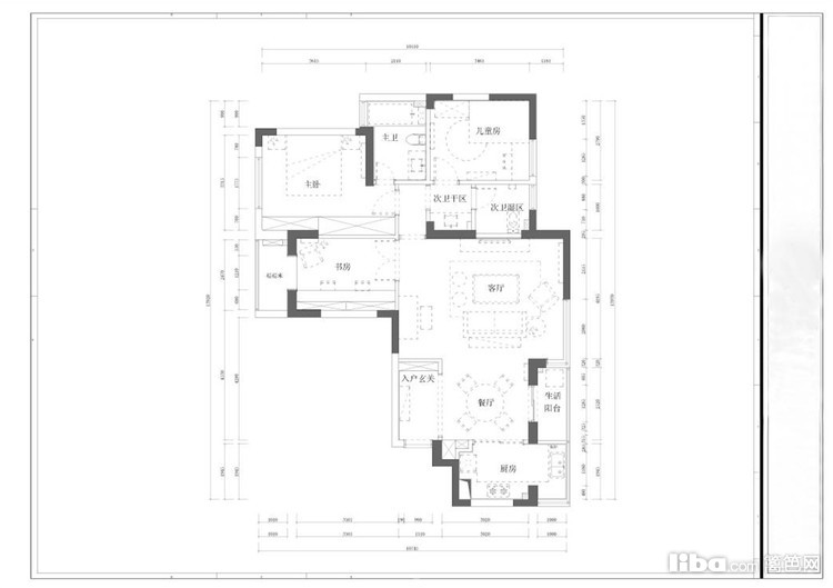
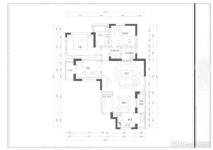
00_概述
业主情况
三口之家
装修要求
希望充分利用现有的空间,需要中西厨和更多家人互动的地方,地下室的设计和利用尤为重要。温馨大气即可。
设计师
首席设计师
设计理念
专注、发现、创新
01_客厅
专注、发现、创新
02_餐厅
专注、发现、创新
03_卧室
专注、发现、创新
04_厨房
专注、发现、创新
05_卫生间
专注、发现、创新
06_其它
专注、发现、创新
免费预约
已有
1673人
下单。预约短信将发您手机上!
你可能还喜欢以下作品
美式 | 三房
帕西诺的独白
28
混搭 | 平层公寓
微光倾城
18
美式 | 三房
小世界
30
美式 | 三房
醉是前缘
8
预约
分享
收藏
返回顶部
报名成功
复制成功
请使用浏览器自带的“分享”功能
可以把作品分享到微信及朋友圈
微信好友
微信朋友圈
新浪微博
QQ空间
链接复制
取消
按钮
预约提醒
亲爱的会员
您**********的号码
今天已预约过20个商家已达到上限
请明天再来!