春申路简约风

384人0 人2021-05-22 发布
现代简约・三房・108㎡・半包9.5万
00_概述
  • 业主情况
    夫妻两带孩子一起居住。
  • 装修要求
    最大化利用空间 需要独立的书房设计。
  • 设计师
    苏苏
  • 设计理念
    人为生活而设计,设计为生活而存在。
  • 01_客厅
    客厅整体色调比较明亮 浅色调为主 整体设计与搭配温馨活泼 。
  • 02_餐厅
    餐厅简单的桌椅方便一家人简单用餐 一旁的餐边柜方便东西的摆放与陈列。
  • 03_卧室
    主卧次卧都以浅色明亮色调为主 主卧做了飘窗 方便日常休闲 主卧做得收纳柜与白墙与床头背景设计融为一体 整体简洁大方。
  • 04_书房
    书房设计了收纳柜 与办公桌 方便日常工作 学习 。
  • 05_厨房
    厨房间浅蓝色调下柜与白色调台面墙面为主 梦幻般的感觉 收纳柜就方便日常东西的摆放与收纳。
  • 06_卫生间
    卫生间干湿分离。
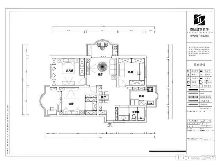
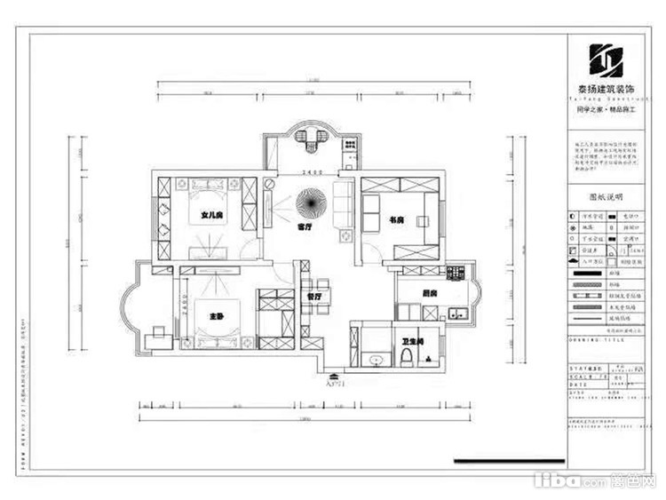
  • 07_其它
    最终确定的户型方案。
免费预约
已有803人下单。预约短信将发您手机上!
复制成功
请使用浏览器自带的“分享”功能
可以把作品分享到微信及朋友圈
取消
预约提醒
亲爱的会员您**********的号码
今天已预约过20个商家已达到上限
请明天再来!