【Warm】

30586人14 人2020-09-29 发布
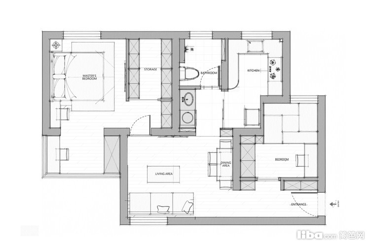
日式・两房・54㎡・半包7万
00_概述
  • 业主情况
    .
  • 装修要求
    客厅宽度太窄,电视视距偏近;无好采光;入户想放独立鞋柜;就餐区域受限;没有完整的独立衣柜;无干湿分离
  • 设计师
    Lily
  • 设计理念
    第一个需求就是客厅太小太暗,二是过道过度浪费,三是卧室空间太大不能合理运用,结合以上三点做了三大整改
  • 01_客厅
    原次卧改为客餐厅区域,因为原客厅窗户朝北采光和通风效果不佳,故做了空间的置换;

    而原客厅有一面朝南的窗户,这样既保持了现客厅的采光和通风

    改造以后又有独立且宽敞的餐厅;同时拉远了客厅电视视距,电视观感更加舒适。

  • 02_餐厅
    餐厅与厨房相隔的空间做了双面柜设计,一是两面柜,面朝客厅是酒柜,面朝厨房是干货(如坚果、茶等)收纳柜,一柜两用,实用收纳解决了;二是视野上作为隔断,用来遮挡卫生间门对应客餐厅。
  • 03_卧室
    主卧相比进深,长度更大,故在主卧室开辟出独立的衣帽间,也是主卧主要的储物空间;衣帽间里的空间也重新做了规划,不以常规的柜子为结构,以更灵活的活动层板和铁艺置物架为主,环保又实用。
  • 04_书房
    原客厅改为玄关+次卧,以一划二,把一个空间划分出两个区域。玄关,解决原户型没有合理放置鞋柜的问题;同时利用鞋柜隔出了一间次卧,

    次卧目前全以活动家具为主,在将来某一个风和日丽迎来新成员时即可根据需求灵活变化

  • 05_厨房
    整个设计上随着动线的改变,把原来的过道合理利用到了厨房和卫生间,利用过道及次卧的空间差把双开门冰箱的风水宝地规划出来,这样大大节约了我们厨房间的空间。

    而厨房的橱柜上柜做了可充电(可拆卸)的灯带,晚上台面操作就不用背光啦,转角处做了开放式的转角置物架。

    现在提倡垃圾干湿分离,故在开放的橱柜下面放了可储物的垃圾桶的位置,不破坏厨房的整体视觉感。

  • 06_卫生间
    借用过道部分空间把卫生间整体外扩,做了干湿分离,平时洗衣及简单洗漱都可在干区直接完成。
  • 07_阳台露台
    连接主卧的阳台打造成多功能使用区,一边以灵活的活动层板+铁艺置物架作为公共储物空间,另一边视野较好妥妥就是办公+休闲区。
  • 08_其它
    .
免费预约
已有27235人下单。预约短信将发您手机上!
复制成功
请使用浏览器自带的“分享”功能
可以把作品分享到微信及朋友圈
取消
预约提醒
亲爱的会员您**********的号码
今天已预约过20个商家已达到上限
请明天再来!