【分·界】

14227人3 人2022-01-24 发布
现代简约・四房・140㎡・半包21万
00_概述
  • 业主情况
    .
  • 装修要求
    空间开阔,居住功能完善,屋主一家在审美上都偏好高冷的黑白灰调,对空间的开放性和收纳形式要求极高。
  • 设计师
    至纯设计
  • 设计理念
    .
  • 01_客厅
    玄关定制组合柜,保证屋主日常鞋物的收纳,空间也更显充实,视觉上更显统一美观。高柜中内嵌穿衣镜,方便日常出门整理着装。安装挂钩,充分利用墙面空间,悬挂衣服、帽子,令入户区域整洁有序。

    电视背景墙运用大理石与木饰面板结合做造型,经典的颜色搭配,非常吸引眼球。

    经典黑的电视内嵌其中,自然地与背景融为一体,视觉更显大气统一。

    整排黑白根大理石电视柜,且无限放大视觉空间,在用色上,又与餐厨区相呼应。

    考虑到原有整体层高不高的因素我们在边角运用弧形来过渡,简约利落的线条设计,让空间多了一丝随性的味道。

  • 02_卧室
    玄关定制组合柜,保证屋主日常鞋物的收纳,空间也更显充实,视觉上更显统一美观。高柜中内嵌穿衣镜,方便日常出门整理着装。安装挂钩,充分利用墙面空间,悬挂衣服、帽子,令入户区域整洁有序。

    五口之家,三代同堂,尊重屋主的意见,让长辈更能舒适的享受生活,将原有的主卧套间调整为父母房

    为进一步提升屋主生活品质,我们拆除次卧邻近走道和书房,改造成衣帽间与书房多功能空间。

    一间舒服的卧室,能给主人带来N+1倍的快乐。主人房布置以简洁舒适为核心,受空间有限限制

    借双人床紧贴飘窗,采光可以充分延伸入室内;床头的吊灯选择宽短款,照明范围更加集中,充满氛围感。

  • 03_厨房
    开放式厨房 我们拆掉厨房原始玻璃门,打造纯开放式厨房,靠墙定制整面高柜,蒸箱、烤箱、冰箱全部内嵌,满足屋主烹饪需求,顶天立地式设计,搭配木色顶面,视觉无限延伸,更为开阔通透。

    简约吊顶+木色元素自然地区分出厨房、客餐厅的界限,形成流畅的视觉过渡,两处空间既联系紧密又互相独立

  • 04_卫生间
    主人房旁的卫生间为家中公卫,考虑屋主女儿也要就近使用,我们将洗手台单独拎出,形成高效的分离布局。
  • 05_阳台露台
    客餐厅共享阳台,未做硬性隔断,仅安装透光不透人的电动梦幻帘,软性切割,光影互通。
  • 06_其它
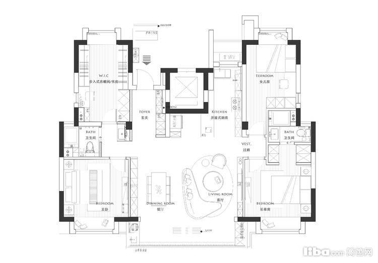
    平面布置图:更多的储物、更独立的空间、更多的可能性

    更多的储物、更独立的空间、更多的可能性

免费预约
已有27235人下单。预约短信将发您手机上!
复制成功
请使用浏览器自带的“分享”功能
可以把作品分享到微信及朋友圈
取消
预约提醒
亲爱的会员您**********的号码
今天已预约过20个商家已达到上限
请明天再来!