【家馨】
53172人1
人2022-07-18 发布
现代简约・别墅・260㎡・全包50万

-
01_客厅
原户型无玄关,通过调整错层方位在不改动楼梯情况下增设,并以玄关为整个家居中轴线,动线调整南北方向。
原户型无玄关,通过调整错层方位在不改动楼梯情况下增设,并以玄关为整个家居中轴线,动线调整南北方向。
全屋无主灯的照明设计视觉更通透。打通客厅、玄关、餐厅、阳台的4个空间,采光得到最大程度的释放。
金属壁灯的简洁语言,与深色背景格栅线条互映,恰生出丰富的格调体验。
运用水波纹不锈钢镜面与定制入户门万物生水相互呼应,生生不息。
-
02_餐厅
餐厅是家庭圆融关系的寄望,也是家里的“交通枢纽中心”,居中摆放直径1.5m的圆桌,既方便四周动线,又能同时容纳12人用餐。
圆桌与顶部的圆形勾勒,流动涟漪,并与玄关立面的水波纹不锈钢镜面彼此呼应,视觉与精神,一脉相承。
-
03_卧室
三代同堂
长辈房以淡雅私密为主。家最重要的是什么?90%的答案都是:“舒服”;
主卧以套间形式展开,设计手法上无过多附加元素,近乎苛求地做减法,去主灯、少赘饰
疫情期间,夫妻二人都有居家办公的需要,同一空间相互干扰非常大,这样就需要多个读书、办公的空间。
祛繁留简、隽永弥新,床头小吊灯洒落柔和光影,稳重静谧与奢雅共存所求归处,生活本质追求的心灵港湾
衣帽间分门别类,过道式为男屋主定制,U形步入式独属于女屋主,挂衣区+存包格+收纳盒,满足四季衣物收纳
男孩房在氛围上倾向于更加内敛,材质与功能优化至极致,只以极少元素的功能陈列与条块相间的收纳,满足需求
不规则非常规格局,根据夹角60°做动静分离,低区为杂物收纳,高区为人物活动区。
-
04_书房
男孩及女孩
功能上把健身、视听、品茗多种功能一体化。和露台紧邻,可以作为娱乐区(看电影、投影),又可作为健身区域
-
05_厨房
三联动移门可让厨房根据不同需要切换成封闭式、半开放、开放式空间,充裕的厨房操作空间让下厨也能相互陪伴,不让空间阻碍情感交流。
挥手感应的抽油烟机风力十足,油烟不是问题。L形厨房、一字型上柜满吊
2个生活冰箱让收纳更充分,台面空无一物,强迫症患者的收纳福音。
-
06_卫生间
“净”与“静”的造境,是对生活品位的宣言,放下所有的浮华与躁动,让心灵轻松释放。
卫浴室回归至简至美的纯粹,干净利落的高级,最青睐黑白二色的对碰。黑色岩板以一己之力,承担下格调。
-
07_阳台露台
.
-
08_其它
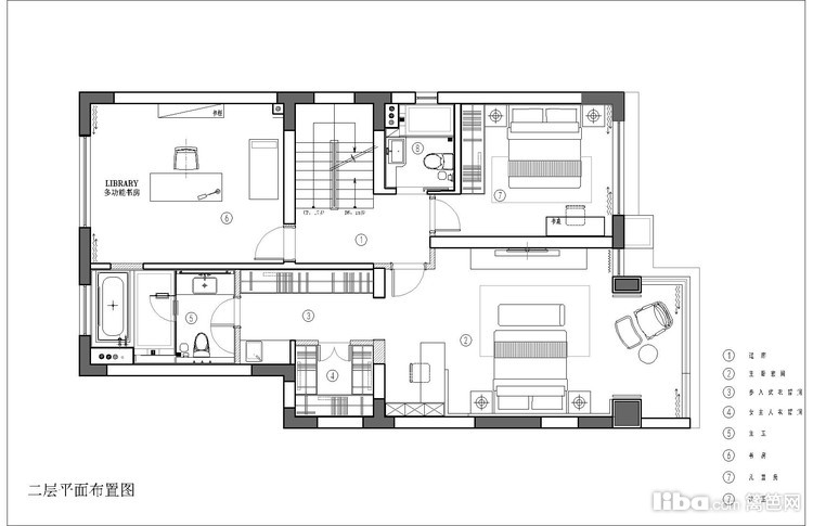
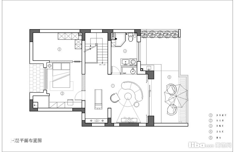
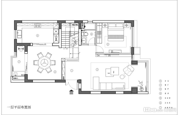
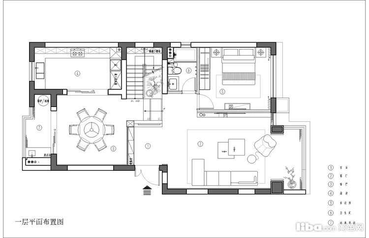
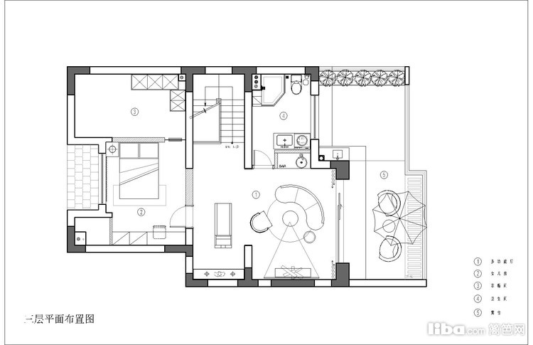
平面布置图
免费预约
已有27235人下单。预约短信将发您手机上!