【奔向地中海】

2723人1 人2015-08-10 发布
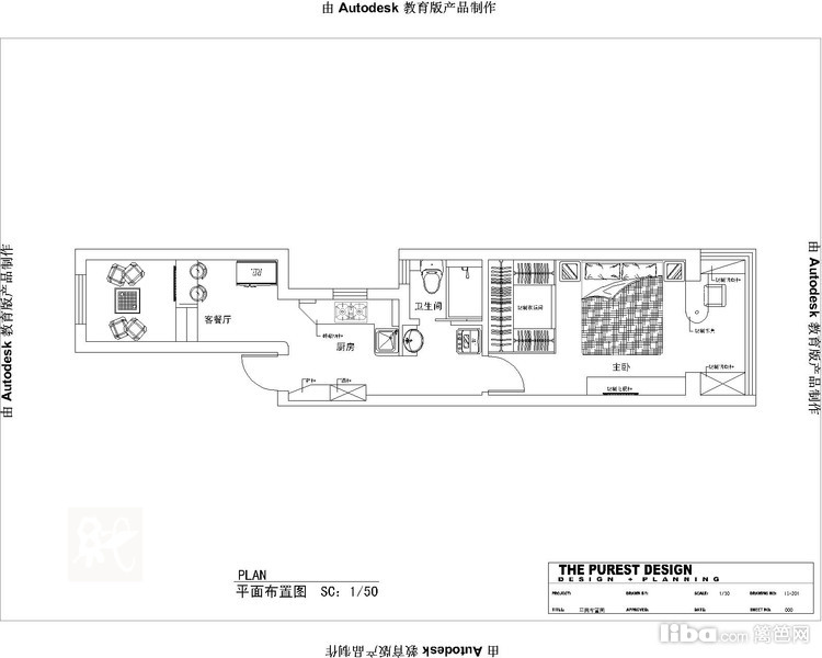
地中海・两房・48㎡・半包3.7万
00_概述
  • 业主情况
    长话短说,自看房起,就开始萌上了地中海风格,有段时间特别追非空的作品,于是坚定了地中海风格的信念。
  • 装修要求
    房子虽小,但是希望能有大量地中海元素在内。老公房,结构为预制板,要怎么才能螺蛳壳里做道场?
  • 设计师
    至纯设计
  • 设计理念
    纯美的色彩方案,不修边幅的线条,独特的装饰方式组成了这套“地中海色调”
  • 01_客厅
    纯美的色彩方案,不修边幅的线条,独特的装饰方式组成了这套“地中海色调”.
  • 02_餐厅
    纯美的色彩方案,不修边幅的线条,独特的装饰方式组成了这套“地中海色调”.
  • 03_卧室
    自制电视柜+陈列柜,阳台上一边是衣柜,一边是书桌+书柜

    从书桌看卧室,黄色条纹帘子里是步入更衣室,左中右三个顶天立地的柜子,由于太乱了,就不放照片啦

  • 04_书房
    最后来个阳台上的小书柜和电脑桌
  • 05_厨房
    进门,一个小小的过道式厨房,楼下邻居把厨房拓出去了,平白多了2个多平米,这么个开放式厨房,偶尔下厨也足够了.

    换个角度看看:砖砌的橱柜,公司订购的模压门板和自己采购的略显中国风的拉手

  • 06_卫生间
    纯美的色彩方案,不修边幅的线条,独特的装饰方式组成了这套“地中海色调”.
免费预约
已有27235人下单。预约短信将发您手机上!
复制成功
请使用浏览器自带的“分享”功能
可以把作品分享到微信及朋友圈
取消
预约提醒
亲爱的会员您**********的号码
今天已预约过20个商家已达到上限
请明天再来!