【悠夏】

7190人7 人2018-07-01 发布
美式・三房・124㎡・半包14万・设计费0.65万
00_概述
  • 业主情况
    一对年轻的小夫妻,女业主是做财务的,夫妻俩平时都比较忙,父母也会来一起居住,房子作为婚房使用。
  • 装修要求
    喜欢美式多一点,但不要纯美式;要一个独立玄关有线条感,鞋柜要大,有一个换鞋的地方;整体要通风,清爽!
  • 设计师
    Xiaoan
  • 设计理念
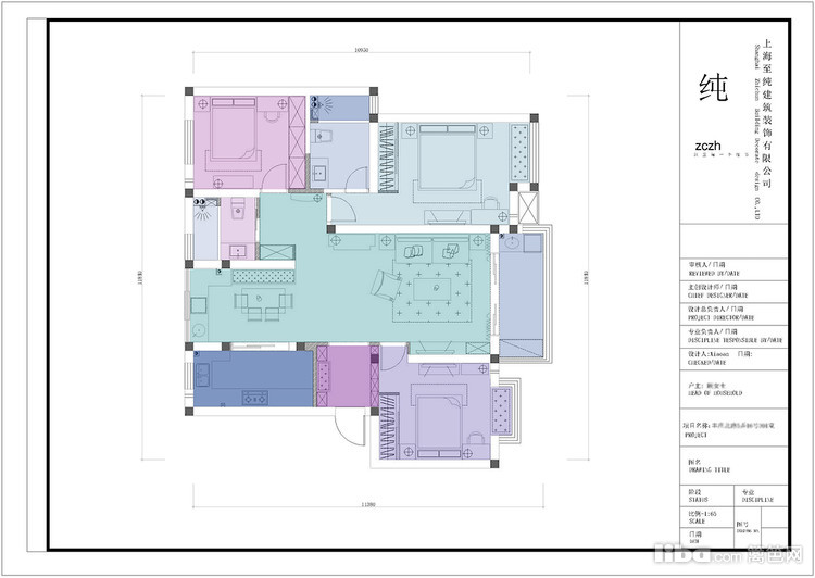
    业主家房型较为正气,在大格局不动的情况下对细节空间做了局部调整,让美观、实用达成一体
  • 01_客厅
    浅蓝色的墙面搭配上深色的窗帘显得客厅更有层次感,蓝色调也让这个夏天更加的清凉。

    浅蓝色的墙面搭配上深色的窗帘显得客厅更有层次感,蓝色调也让这个夏天更加的清凉。

    浅蓝色的墙面搭配上深色的窗帘显得客厅更有层次感,蓝色调也让这个夏天更加的清凉。

    木线条与顶上石膏线结合也能相互衬托美式线条之美。

    因为南次卧门洞的改向,使玄关处有一个延伸致顶的大门套,很好的将玄关与客餐厅区域分割开来。

    因为南次卧门洞的改向,使玄关处有一个延伸致顶的大门套,很好的将玄关与客餐厅区域分割开来

    电视背景利用美式线条很好的将柜子与高门头门套线条连成一体,既能储物也不失美观。

    浅蓝色的墙面搭配上深色的窗帘显得客厅更有层次感,蓝色调也让这个夏天更加的清凉。

  • 02_餐厅
    餐厅与西厨相结合,让整个餐厅真正的做到小空间大利用,功能、实用性双双达标。即使不是餐点时间,手持一本书双双倚靠在卡座上,也是情调十足~

    敲掉原北阳台的两个垛子后,扩充了餐厅的空间,整体视野上显得餐厅更加宽裕通透。

    设计师在测量时就用墙体测量仪观察了北阳台的空间,利用打通后的原北阳台规划为西式厨房。

  • 03_卧室
    美式深色家具的沉稳搭配上轻质感的天空蓝完美的中和了纯传统美式的沉闷。

    搭配成品实木衣柜、床头柜、五斗柜、梳妆台,相信木质感会随着日积月累的摩擦而变得更加具有历史及归属感。

    基于为了照顾父母的审美偏好以及对空间的舒适要求,搭配了浅天空蓝的窗帘增加沉稳性。

    南次卧是全屋唯一采用米色墙面的房间,在沉稳的空间里,贵族式的“跃马扬鞭”装饰画无形中也多了丝丝活力。

  • 04_书房
    美式能给人一种安静和历史感,立体式的白色衣柜与黑色把手搭配,给人视觉上的沉淀!

    墙面采用性冷淡风的灰蓝色调配--“静思细想”,时间流逝的感觉不自觉在指尖悄然而过,但菱角依旧。

    为将来的小天使准备,原设计这个空间是次卧,考虑到短期内不会用,所以特设计了灵活是的空间--次卧兼书房

  • 05_厨房
    厨房,这个烟火味满满的地方才是家里最有归属感的一处空间,L型的橱柜更是将厨房功能最大化。

    厨房空间比较大,墙面特采用仿古砖拼色系列,复古色的纹理不经意间觉得一天中最平凡而又幸福的时刻已来到!

  • 06_卫生间
    两个卫生间都做了干湿分离,相同的需求下用不同的色调区分不同年代的审美!

    厚重的美式台盆柜搭配浅米色瓷砖合成一体,干净清爽。

    蓝色调的仿古砖,通过不同的正贴及斜贴,使得整体色调和主卧相一致外,不同的造型也增加了空间的乐趣。

  • 07_其它
    地面的瓷砖选用了浅咖与米色地砖的菱形拼花设计,与白色玄关柜、鞋柜相结合,利用换鞋凳的软包色调与墙面天空纯净蓝做出挑色,让出入时更觉自然浓郁而又不乏空间的线条层次美。

    转移次卫门洞的朝向,保证玄关整体,达到鞋柜大的需求;两边的换鞋凳和内嵌空间功能区,让进出门更轻松!

免费预约
已有27235人下单。预约短信将发您手机上!
复制成功
请使用浏览器自带的“分享”功能
可以把作品分享到微信及朋友圈
取消
预约提醒
亲爱的会员您**********的号码
今天已预约过20个商家已达到上限
请明天再来!