透
11885人5
人2019-04-25 发布
现代简约・三房・134㎡・全包28万・设计费0.9万

-
01_客厅
客厅电视背景墙由于一边是防盗门,一边是房门,故以简单的跳色为背景,简约而不失逼格。靠南边的飘窗就作为休闲区域,偶尔有朋友过来的时候沙发、飘窗上或倚或座的度过下午时光。
调色搭配为背景,靠南为休闲区域。
调色搭配为背景,靠南为休闲区域。
调色搭配为背景,靠南为休闲区域。
调色搭配为背景,靠南为休闲区域。
调色搭配为背景,靠南为休闲区域。
调色搭配为背景,靠南为休闲区域。
-
02_餐厅
餐厅部分现做了吧台和酒柜设计之后,再放餐边柜及餐桌显得着实拥挤,所以定制了卡座+餐边柜相结合的设计,让过道的空间不至于过于逼仄。
卡座+餐边柜结合,让过道的空间不至于过于逼仄。
卡座+餐边柜结合,让过道的空间不至于过于逼仄。
卡座+餐边柜结合,让过道的空间不至于过于逼仄。
卡座+餐边柜结合,让过道的空间不至于过于逼仄。
卡座+餐边柜结合,让过道的空间不至于过于逼仄。
-
03_卧室
儿童房目前主要以大公主学习使用,采用了上下2层的儿童房,公主住楼下,对面作为平时学习的工作桌。
儿童房目前主要以大公主学习使用,采用了上下2层的儿童房,公主住楼下,对面作为平时学习的工作桌。
儿童房目前主要以大公主学习使用,采用了上下2层的儿童房,公主住楼下,对面作为平时学习的工作桌。
儿童房目前主要以大公主学习使用,采用了上下2层的儿童房,公主住楼下,对面作为平时学习的工作桌。
儿童房目前主要以大公主学习使用,采用了上下2层的儿童房,公主住楼下,对面作为平时学习的工作桌。
主卧的原格局不规整,客户希望有衣帽间的设计。由于衣物实在太多,随之做了4联移门的衣帽间设计由此产生。
卧的原格局不规整,客户希望有衣帽间的设计。由于衣物实在太多,随之做了4联移门的衣帽间设计由此产生。
卧的原格局不规整,客户希望有衣帽间的设计。由于衣物实在太多,随之做了4联移门的衣帽间设计由此产生。
卧的原格局不规整,客户希望有衣帽间的设计。由于衣物实在太多,随之做了4联移门的衣帽间设计由此产生。
卧的原格局不规整,客户希望有衣帽间的设计。由于衣物实在太多,随之做了4联移门的衣帽间设计由此产生。
保留三房,父母有时候会过来住
-
04_厨房
保持了原有格局不动的情况持续做了U型设计,但厨房和餐厅相连的地方用了玻璃移门作为隔断,这样既打通了厨房和餐厅的空间,又使得整个房屋空气保持流通,光线更加通透。
U形设计,厨房和餐厅用玻璃移门隔开,打通空间,保持空间通透,空气流通。
U形设计,厨房和餐厅用玻璃移门隔开,打通空间,保持空间通透,空气流通。
-
05_卫生间
卫生间的格局比较方正,弊端是通风主要依靠南边的小窗户,所以在搭配设计上就选择了黑白色搭配,借助黑白反差色使得整个空间更加立体和鲜明。
黑白色搭配,借助黑白反差色使得整个空间更加立体和鲜明。
-
06_其它
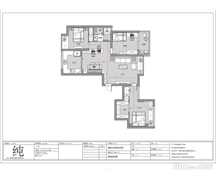
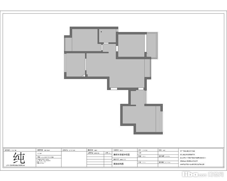
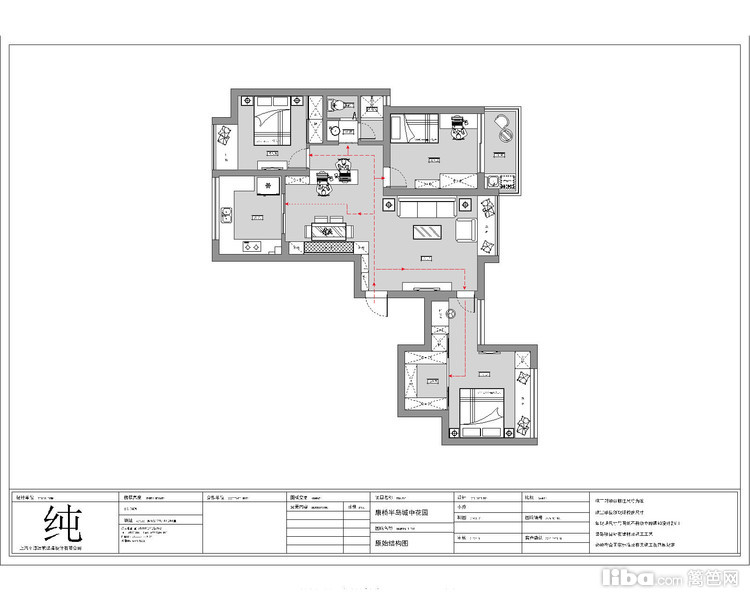
方案图
方案图
平面图
一角
免费预约
已有27235人下单。预约短信将发您手机上!