【风雅社】
5514人2
人2019-05-23 发布
中式・复式・150㎡・半包12万・设计费0.6万

-
01_餐厅
房子带有一个地下室,一楼是一个标准的两房,但是每个房间都很小,客户希望把空间改造变大,采光好一点,设计之初,确定了每个局域的使用,一楼主要作为茶室以及接待友人
客户希望把空间改造变大,采光好一点,设计之初,确定了每个局域的使用,一楼主要作为茶室以及接待友人
客户希望把空间改造变大,采光好一点,设计之初,确定了每个局域的使用,一楼主要作为茶室以及接待友人
客户希望把空间改造变大,采光好一点,设计之初,确定了每个局域的使用,一楼主要作为茶室以及接待友人
客户希望把空间改造变大,采光好一点,设计之初,确定了每个局域的使用,一楼主要作为茶室以及接待友人
客户希望把空间改造变大,采光好一点,设计之初,确定了每个局域的使用,一楼主要作为茶室以及接待友人
客户希望把空间改造变大,采光好一点,设计之初,确定了每个局域的使用,一楼主要作为茶室以及接待友人
客户希望把空间改造变大,采光好一点,设计之初,确定了每个局域的使用,一楼主要作为茶室以及接待友人
-
02_卧室
在客厅里面做了一个榻榻米,偶尔朋友和家里人过来,有个地方休息午睡
在客厅里面做了一个榻榻米,偶尔朋友和家里人过来,有个地方休息午睡
-
03_厨房
厨房做了一个比较北欧的西厨,主要是方便爱好做点心的人使用,也只是为了偶尔闲来无事做糕点
厨房做了一个比较北欧的西厨,主要是方便爱好做点心的人使用,也只是为了偶尔闲来无事做糕点
厨房做了一个比较北欧的西厨,主要是方便爱好做点心的人使用,也只是为了偶尔闲来无事做糕点
-
04_卫生间
地下室主要是作为一个活动局域使用,楼下采光相对一楼更差,所以在风格使用了工业风,以彩色作为调色使用
地下室主要是作为一个活动局域使用,楼下采光相对一楼更差,所以在风格使用了工业风,以彩色作为调色使用
-
05_阳台露台
业主是一位喜欢种植绿植的人,所以特地在一楼做了一个花园,以供自己欣赏
业主是一位喜欢种植绿植的人,所以特地在一楼做了一个花园,以供自己欣赏
-
06_其它
地下室主要作为活动场所所展开。而屋主是一位非常精致的阳光男孩。也喜欢参加花艺、多肉展等;所以也经常会有朋友来茶室,借用地下室的空间做了花艺、陶瓷等艺术培训、活动空间的平台等等~
经常会有朋友来茶室,借用地下室的空间做了花艺、陶瓷等艺术培训、活动空间的平台等等~
经常会有朋友来茶室,借用地下室的空间做了花艺、陶瓷等艺术培训、活动空间的平台等等~
经常会有朋友来茶室,借用地下室的空间做了花艺、陶瓷等艺术培训、活动空间的平台等等~
经常会有朋友来茶室,借用地下室的空间做了花艺、陶瓷等艺术培训、活动空间的平台等等~
经常会有朋友来茶室,借用地下室的空间做了花艺、陶瓷等艺术培训、活动空间的平台等等~
经常会有朋友来茶室,借用地下室的空间做了花艺、陶瓷等艺术培训、活动空间的平台等等~
经常会有朋友来茶室,借用地下室的空间做了花艺、陶瓷等艺术培训、活动空间的平台等等~
经常会有朋友来茶室,借用地下室的空间做了花艺、陶瓷等艺术培训、活动空间的平台等等~
经常会有朋友来茶室,借用地下室的空间做了花艺、陶瓷等艺术培训、活动空间的平台等等~
经常会有朋友来茶室,借用地下室的空间做了花艺、陶瓷等艺术培训、活动空间的平台等等~
经常会有朋友来茶室,借用地下室的空间做了花艺、陶瓷等艺术培训、活动空间的平台等等~
经常会有朋友来茶室,借用地下室的空间做了花艺、陶瓷等艺术培训、活动空间的平台等等~
经常会有朋友来茶室,借用地下室的空间做了花艺、陶瓷等艺术培训、活动空间的平台等等~
经常会有朋友来茶室,借用地下室的空间做了花艺、陶瓷等艺术培训、活动空间的平台等等~
地下室方案图
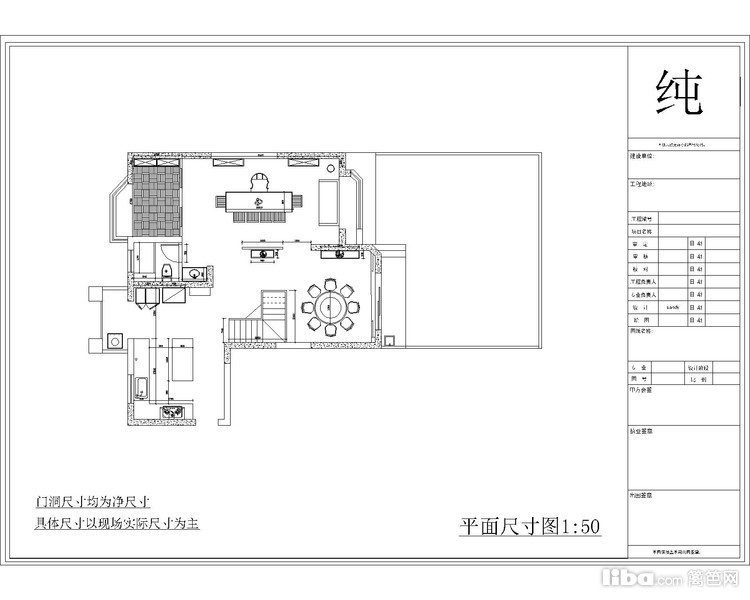
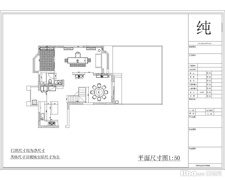
一楼平面图
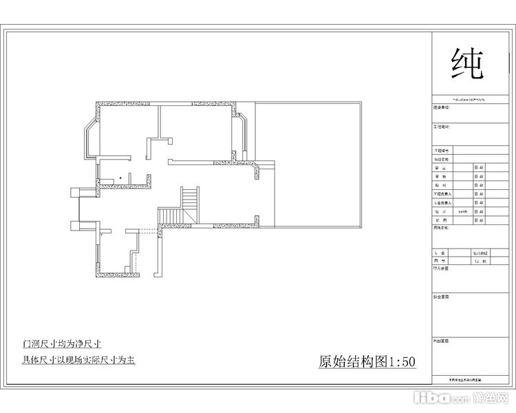
一楼原始图
地下室原始图
免费预约
已有27235人下单。预约短信将发您手机上!