墨香扉页

17702人11 人2019-06-07 发布
欧式・三房・142㎡・半包18万・设计费0.85万
00_概述
  • 业主情况
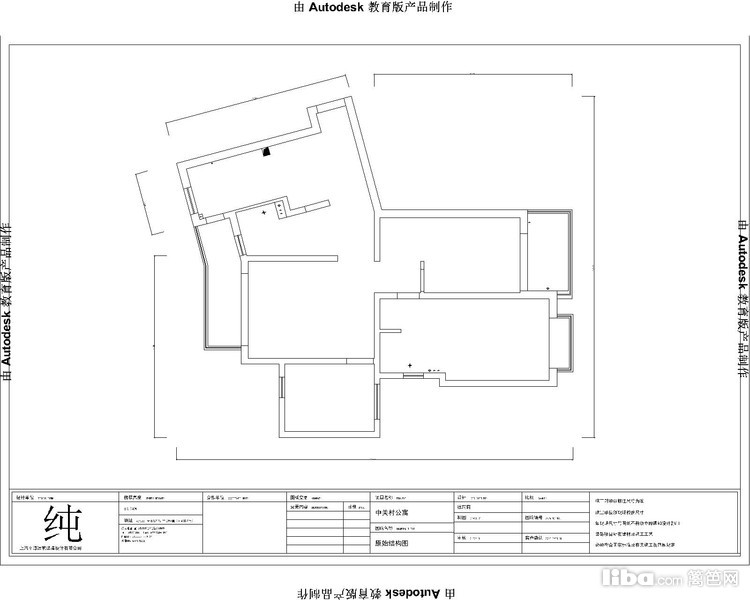
    一家三口居住,小朋友3岁小公主,偶尔父母来住; 原始户型:进门是斜房子;要求储物空间多;
  • 装修要求
    家有小朋友,储物要多点
  • 设计师
    至纯设计
  • 设计理念
    不占用任何空间下,增加储物
  • 01_客厅
    文学家的成长道路第一步就是拥有一间没有电视的客厅及整墙的书橱!

    文学家的成长道路第一步就是拥有一间没有电视的客厅及整墙的书橱!

    文学家的成长道路第一步就是拥有一间没有电视的客厅及整墙的书橱!

    文学家的成长道路第一步就是拥有一间没有电视的客厅及整墙的书橱!

    文学家的成长道路第一步就是拥有一间没有电视的客厅及整墙的书橱!

  • 02_卧室
    少女心泛滥的女主必是要给小公举一个粉粉的小天地。

    少女心泛滥的女主必是要给小公举一个粉粉的小天地。

    少女心泛滥的女主必是要给小公举一个粉粉的小天地。

    利用原主卫的空间,被放大的主卧添置进了步入式衣帽间,圆了女主的梦。

    利用原主卫的空间,被放大的主卧添置进了步入式衣帽间,圆了女主的梦。

    利用原主卫的空间,被放大的主卧添置进了步入式衣帽间,圆了女主的梦。

    利用原主卫的空间,被放大的主卧添置进了步入式衣帽间,圆了女主的梦。

  • 03_书房
    在设计之初其实有一个户型弊端,主卧与原次卧中间的过道空间其实浪费严重,这个空间如果单独划分空间又过于拥挤,会觉得压抑。借用过道,合并成新的局域

    书房

    书房

  • 04_厨房
    从厨房可以通向北阳台,所以厨房可操作的面积就小啦。现把厨房和北阳台的门封掉重新规划把厨房做了U字型的设计。

    把厨房做了U字型的设计。

    把厨房做了U字型的设计。

  • 05_卫生间
    把原卫生间重新规划做了干湿分离。干区部分做出来了双台盆的设计,对面把不规则的干区用储物柜的形式让其更加规整

    把原卫生间重新规划做了干湿分离。

    把原卫生间重新规划做了干湿分离。

    把原卫生间重新规划做了干湿分离。

    把原卫生间重新规划做了干湿分离。

  • 06_其它
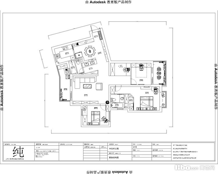
    平面布置图

    平面布置图

    原始户型图

免费预约
已有27235人下单。预约短信将发您手机上!
复制成功
请使用浏览器自带的“分享”功能
可以把作品分享到微信及朋友圈
取消
预约提醒
亲爱的会员您**********的号码
今天已预约过20个商家已达到上限
请明天再来!