装修首页
浩硕整体家装
作品库
执宿
浩硕整体家装
免费预约
收藏
分享
执宿
668人
0 人
2019-02-22 发布
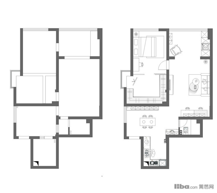
现代简约・两房・72㎡・半包6.5万・设计费0.4万
00_概述
业主情况
独自居住的职场女强人
装修要求
设计要满足实际使用需求
设计师
设计团队
设计理念
-
01_客厅
梦想筑家·品质为您
02_餐厅
梦想筑家·品质为您
03_卧室
梦想筑家·品质为您
04_书房
梦想筑家·品质为您
05_厨房
梦想筑家·品质为您
06_阳台露台
梦想筑家·品质为您
免费预约
已有
1631人
下单。预约短信将发您手机上!
你可能还喜欢以下作品
现代简约 | 三房
织梦
25
美式 | 三房
时光物语
18
美式 | 三房
西海岸的风
20
现代简约 | 两房
95㎡老公房改造
23
预约
分享
收藏
返回顶部
报名成功
复制成功
请使用浏览器自带的“分享”功能
可以把作品分享到微信及朋友圈
微信好友
微信朋友圈
新浪微博
QQ空间
链接复制
取消
按钮
预约提醒
亲爱的会员
您**********的号码
今天已预约过20个商家已达到上限
请明天再来!