北欧原木

2086人15 人2019-08-14 发布
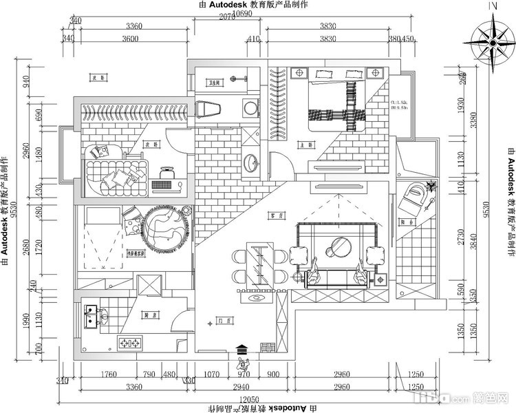
日式・三房・84㎡・半包9.63万・设计费0.5万
00_概述
  • 业主情况
    喜欢猫咪并养有两只,准备在这套房子里陪伴她们老去,喜欢没事的时候窝在家里打打游戏做做饭。
  • 装修要求
    对之前的设计风格不太满意,要求整体布局美观大方。
  • 设计师
    仇译
  • 设计理念
    将原来的三室改造成两室一书房,并利用清爽干净的颜色与木色和深咖啡色来进行调和。
  • 01_客厅
    客厅

    拆除客厅与次卧室的墙体,用半墙加窗户的形式与客厅连接。

    女主人喜欢养花,加上横厅足够,保留客厅阳台

    推拉门的设计,使书房客厅餐厅空间形成一个整体,增加采光通风,增强人与人之间,人与动物之间的互动。

  • 02_餐厅
    餐厅
  • 03_卧室
    卧室

    拆除原储物空间,像书房借空间形成主卧的大衣柜,增加储物空间。

  • 04_厨房
    厨房
  • 05_卫生间
    卫生间

    改变主卧和主卫的进门方向,使动线更加合理,使用更加便利。

  • 06_阳台露台
    露台
  • 07_其它
    其它
免费预约
已有29227人下单。预约短信将发您手机上!
复制成功
请使用浏览器自带的“分享”功能
可以把作品分享到微信及朋友圈
取消
预约提醒
亲爱的会员您**********的号码
今天已预约过20个商家已达到上限
请明天再来!