9月新作《雾霾蓝》
        	3377人15
人2019-09-12 发布
 			其它・两房・55㎡・半包7.2万・设计费0.56万
 			
 			
	 		
	 			
	                        - 
	                            
01_客厅
	                            客厅
	                                
	                                    
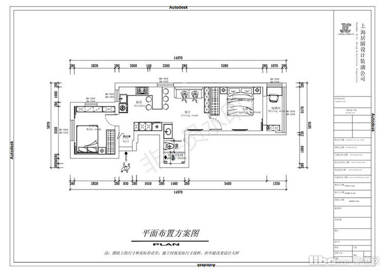
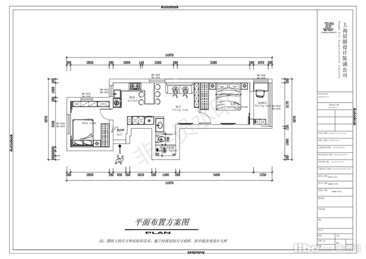
	                                        后来设计增加的,原结构是没有客厅的,改动后减少主卧室面积,增加客餐厅面积,保证有一个舒适的会客厅。
	                                 
	                                
	                                    
	                                        局部墙面通过跳色增加空间立体感
	                                 
	                                
	                                
	                                
	                         
	                        - 
	                            
02_餐厅
	                            餐厅
	                                
	                                    
	                                        缩小主卧室,增加了一个小会客厅;因为空间小,所以没有过多的立面装饰。
	                                 
	                                
	                                
	                                
	                         
	                        - 
	                            
03_卧室
	                            卧室
	                                
	                                    
	                                        原厨房面积很小,现代化的厨房要求无法满足,所以考虑从空间上扩大厨房,同时兼顾餐厅。
	                                 
	                                
	                                
	                                
	                                    
	                                        主卧室我们保持功能不变,将其和阳台打通,保证采光和视觉空间。增加休闲功能。
	                                 
	                                
	                                
	                         
	                        - 
	                            
04_卫生间
	                            卫生间
	                                
	                                    
	                                        卫生间保证功能情况下,尽量增加通风功能,因为属于暗卫,
	                                 
	                                
	                                    
	                                        所以色彩以明亮轻快为主。同时增加气窗,换气扇等功能
.
	                                 
	                         
	                        - 
	                            
05_其它
	                            其它
	                                
	                                
	                         
	 			
	 		 
	 		
	 			免费预约
	 			已有29052人下单。预约短信将发您手机上!