《时 光》

1600人3 人2019-12-07 发布
其它・三房・95㎡・半包9万・设计费0.58万
00_概述
  • 业主情况
    客户是三口之家,父母偶尔来居住。
  • 装修要求
    整体比较喜欢温馨又简单的装修。
  • 设计师
    徐静
  • 设计理念
    实用与颜值并重。
  • 01_客厅
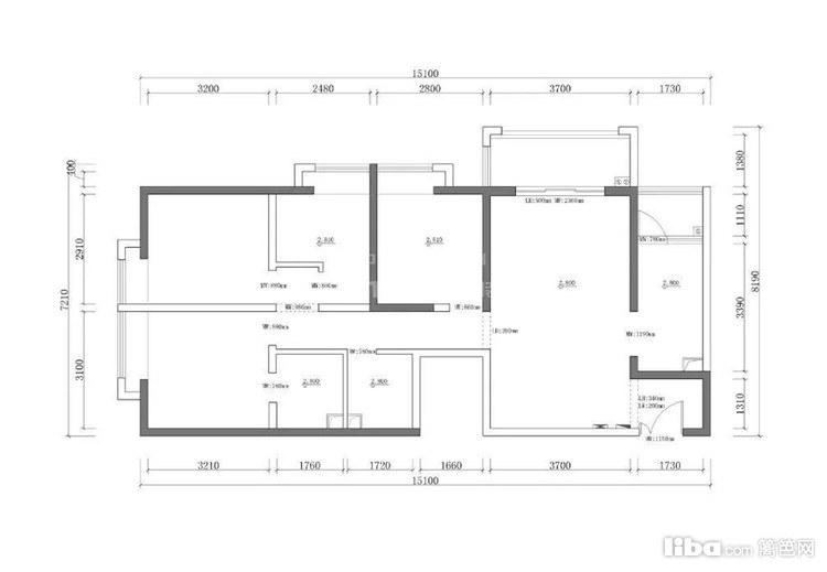
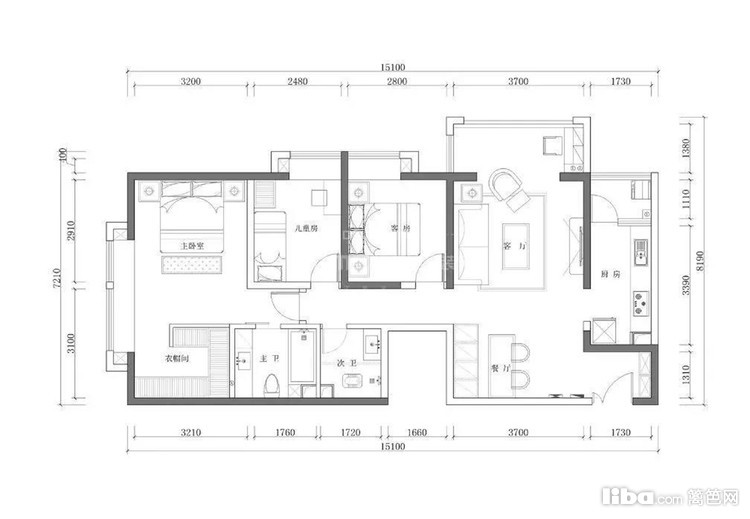
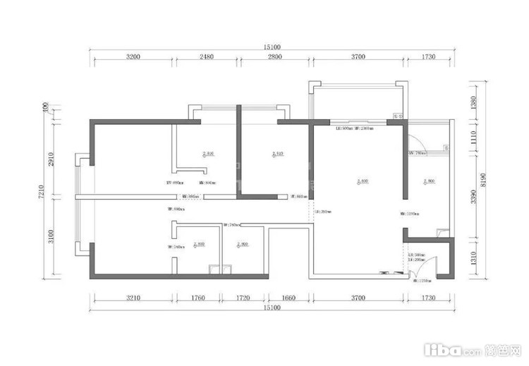
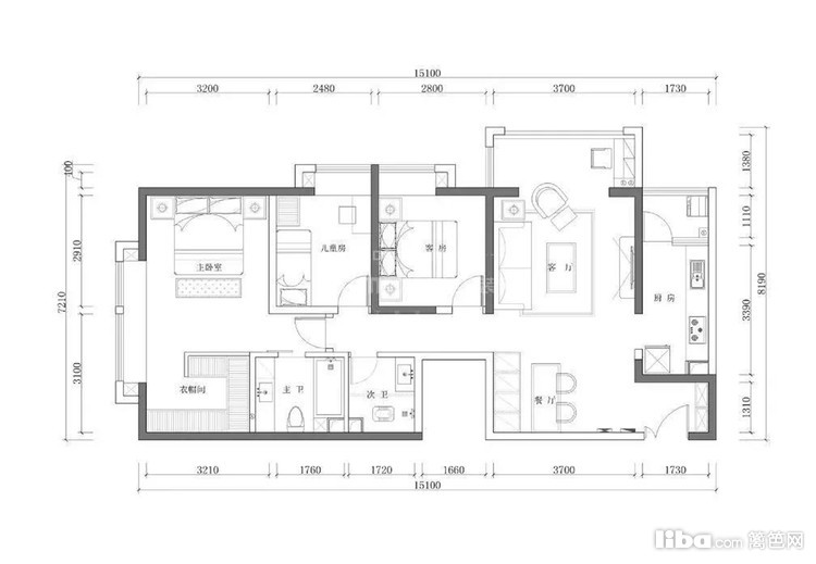
    原始户型四房,有一个房间比较小,利用率比较低,根据居住情况,改成三房。
  • 02_餐厅
    餐厅
  • 03_卧室
    经过商量把两个相邻的两个房间改成一个套间,双阳台也能充分利用,小房间也多出来一个多平方,主卫也能做到主卧的套间里面,达到储藏跟实用两不误的情况。
  • 04_卫生间
    主人卧室也比较宽敞,主卫设计一个浴缸,可以再闲暇之余泡个热水澡
  • 05_其它
    其它
免费预约
已有29225人下单。预约短信将发您手机上!
复制成功
请使用浏览器自带的“分享”功能
可以把作品分享到微信及朋友圈
取消
预约提醒
亲爱的会员您**********的号码
今天已预约过20个商家已达到上限
请明天再来!