120平现代简约3居装修设计

651人0 人2020-08-21 发布
现代简约・三房・120㎡・全包25万
00_概述
  • 业主情况
    楼盘名称:欧风家园 户型:3室2厅 房型:公寓 风格:现代简约 面积:120㎡ 设计师:刘宏亮
  • 装修要求
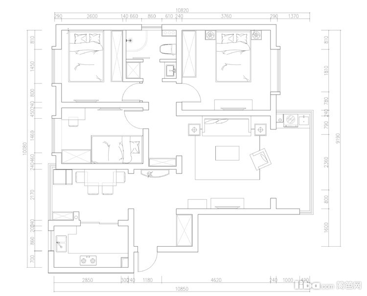
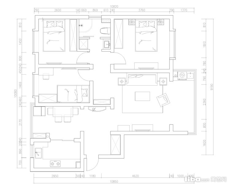
    本户型是一个标准的3室2厅,南北通透的格局。原户型的过道太长又没有被利用起来。
  • 设计理念
    客厅的吊顶采用了二级吊顶以增加整体的层次感,墙面采用大理石木饰面,再通过家具色块的碰撞,去打造现代感
  • 01_客厅
    客厅的吊顶采用了二级吊顶以增加整体的层次感,墙面采用大理石木饰面,再通过家具色块的碰撞,去打造现代感与时尚感的空间效果。

    黄蓝的经典搭配一直被认为是气质的表现,让空间既有质感又有活力。深浅搭配的手法,使家具颇具轮廓感,

    内嵌式座位便于坐下来脱换鞋靴,由上至下的鞋柜,可以容纳全家人的鞋靴,整洁又实用。

  • 02_餐厅
    厨房与餐厅以玻璃门隔开,小小的餐厅区域,桌面靠墙,长形餐桌搭配3面4椅的摆放,满足了一家人的就餐需求的同时,还能节约空间。

    空间缩水,但品质不缩水。精致的餐盘、充满艺术气息的挂画,都是女主人对生活的装扮与享受。

  • 03_其它
    装修需求: 1、原户型的过道过长,浪费空间 2、原户型没有玄关,希望可以增加一个玄关

    平面图

    平面布置图

免费预约
已有334人下单。预约短信将发您手机上!
复制成功
请使用浏览器自带的“分享”功能
可以把作品分享到微信及朋友圈
取消
预约提醒
亲爱的会员您**********的号码
今天已预约过20个商家已达到上限
请明天再来!