装修首页
境远设计・装饰
作品库
《归处》
境远设计・装饰
免费预约
收藏
分享
《归处》
3371人
5 人
2019-09-06 发布
现代简约・三房・93㎡・半包11万・设计费0.75万
00_概述
业主情况
业主是一一家三口入住,女儿已经成年毕业工作
装修要求
简约兼职功能性
设计理念
设计理念: 设计源于对生活的认知,是丰富阅历的升华
01_客厅
客厅
客厅
客厅
客厅
客厅
客厅
客厅
客厅
客厅
客厅
02_餐厅
餐厅
餐厅
餐厅
餐厅
餐厅
餐厅
03_卧室
卧室
卧室
卧室
卧室
04_厨房
厨房
厨房
05_卫生间
卫生间
卫生间
06_其它
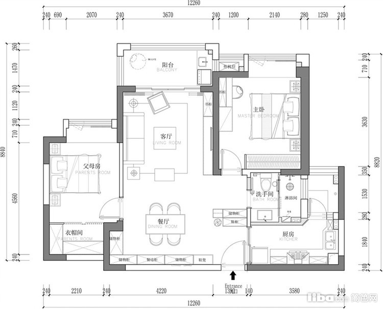
方案图
方案图
免费预约
已有
50404人
下单。预约短信将发您手机上!
你可能还喜欢以下作品
法式 | 三房
法式中古·温柔漫时光里乌托邦
21
日式 | 四房
极简原木·客厅爆改家庭图书馆
23
法式 | 两房
新作【法式中古】
27
法式 | 三房
【现代法式】
29
预约
分享
收藏
返回顶部
报名成功
复制成功
请使用浏览器自带的“分享”功能
可以把作品分享到微信及朋友圈
微信好友
微信朋友圈
新浪微博
QQ空间
链接复制
取消
按钮
预约提醒
亲爱的会员
您**********的号码
今天已预约过20个商家已达到上限
请明天再来!