夫妻俩巧改90平三房,有娃家庭

936人0 人2021-01-05 发布
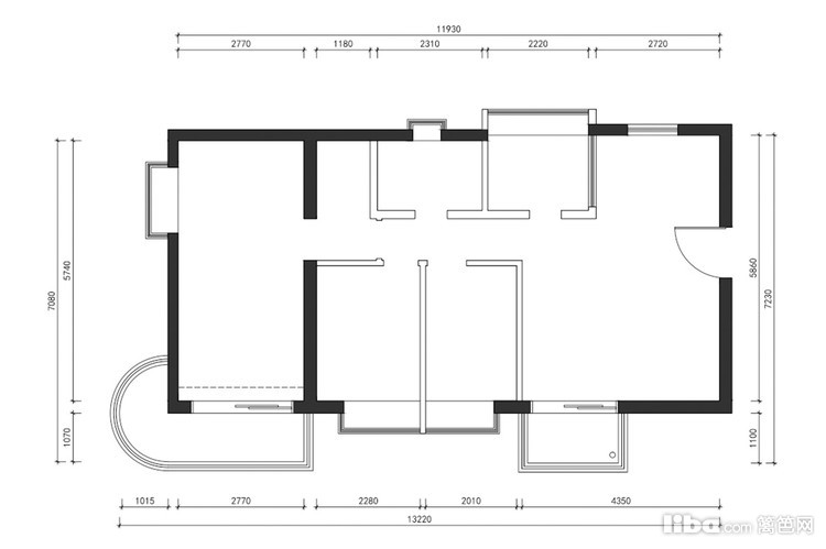
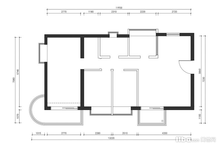
现代简约・三房・90㎡・全包10.9万
00_概述
  • 业主情况
    老房子改造,改三房,有一个可爱的娃儿
  • 装修要求
    1、要有足够的收纳空间。 2、要有供孩子玩耍的宽敞空间。 2、客厅可以不考虑电视沙发。 3、要有书架
  • 设计师
    罗小雨
  • 设计理念
    根据业主的需求以及生活习惯进行空间合理布局规划
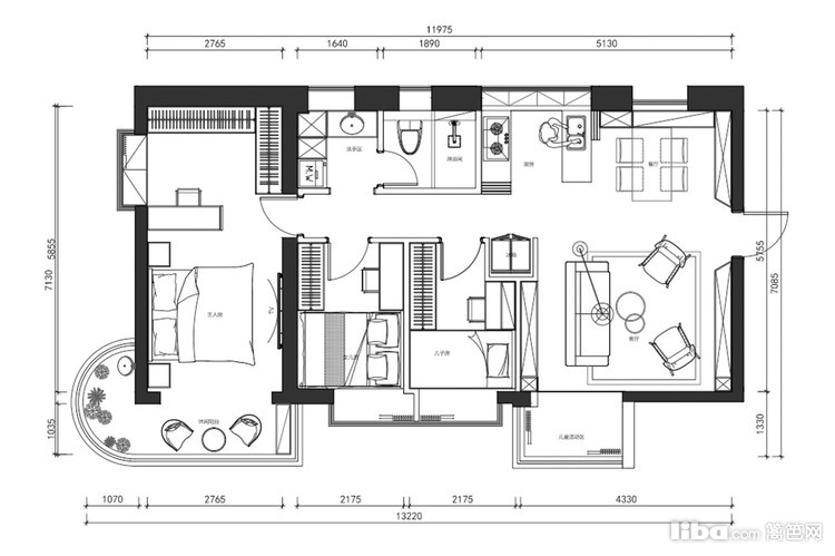
  • 01_客厅
    客厅也是一个极有心机的设计点。不同于常规的客厅,这里去掉了电视背景墙设计,打造多元化的起居空间。
  • 02_餐厅
    木色与白色的搭配,简约而温馨。分柜体中间镂空部分,连接窗边的木质台面,井然有序地摆着红酒、茶具、水壶、绿植等用品。

    分柜体中间镂空部分,连接窗边的木质台面,井然有序地摆着红酒、茶具、水壶、绿植等用品。

    台面下方留空嵌入餐桌,配上一幅彩色装饰画,好看的同时,该有的功能一个不少。

    餐厅的长桌也不是传统意义上的餐桌,可用餐,可品茶,打开电脑也可以是一个简单的工作区。

    餐厅的长桌也不是传统意义上的餐桌,可用餐,可品茶,打开电脑也可以是一个简单的工作区。

  • 03_卧室
    主卧的空间比较宽敞,但目前的布局比较简约。纯白主色配搭木质底色,打造得卧室空间温润又舒适,咖色的条纹床品在线条的纹理下彰显细腻质感。

    主卧尽头是整面柜体,延伸至门后,形成L型布局,空间优化更合理。

    如此大的储物量,完全可以充当衣帽间的功能。

    设计师原规划的这里除了有床、衣柜外,还规划了一块办公区,在衣柜和床之间。

    次卧是为父母准备,他们偶尔来小住。满足屋主“书本随处可取”的要求。

    迎合了她这个年龄该有的好动爱玩的天性。不过考虑到小朋友现在还小,暂时没有放独立的床铺,以玩为主

  • 04_书房
    满足屋主“书本随处可取”的要求
  • 05_厨房
    原先的厨房为封闭设计,这里设计师打通了厨房空间, 用对角推拉门做成开合式。这样一来,不但增强了厨房、餐厅、客厅三个空间的交互性,也使得整个布局更加鲜活通透。

    打开门,厨房和客餐厅串联,通透无阻。关上门空间独立,不影响采光,也能隔绝油烟。

    这里说明一点,打造可分合的开放厨房,一定要注意与其他空间风格上的统一协调。

    图中我们也可以看出,白色与木色的搭配呼应了餐厅空间,而极致的收纳,也在厨房中得到了充分的体现。

  • 06_卫生间
    三分离式,每一块区域都有足够的活动空间,保证使用起来的舒适度和宽敞度。

    洗漱台外移打造干区,与洗衣机、烘干机、收纳柜的完美结合,动线流畅,更是家里幸福指数提升的一大关键。

免费预约
已有1167人下单。预约短信将发您手机上!
复制成功
请使用浏览器自带的“分享”功能
可以把作品分享到微信及朋友圈
取消
预约提醒
亲爱的会员您**********的号码
今天已预约过20个商家已达到上限
请明天再来!