装修首页
桔装无忧
作品库
Less is more
桔装无忧
免费预约
收藏
分享
Less is more
846人
0 人
2021-01-10 发布
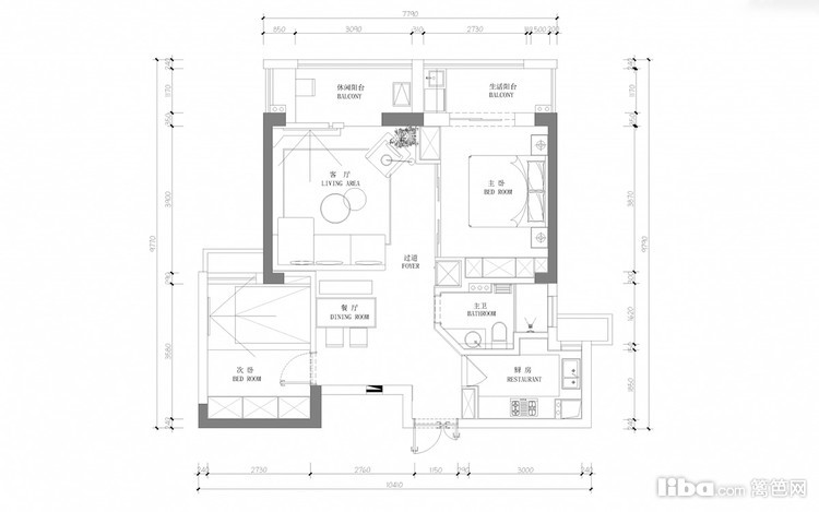
日式・两房・60㎡・全包8.3万
00_概述
业主情况
老房翻新,一家三口人,喜欢清爽干净简约
装修要求
了解到业主对于生活的理解正好与“Less is more”相一致,满足需求基础上做减法,小户型空间大
设计师
田俊杰
设计理念
根据业主的需求进行空间合理布局规划设计
01_客厅
我们开始做减法,主卧与客餐厅区域设计师利用玻璃移门形成通透的空间,相互贯穿,将空间模糊化,从而在视野上削弱了小户型带来的局促感。
空间留白是极简设计中最常用的手法。此住宅墙面大面积留白
设计师为了让墙面颜色和地面颜色搭配更融合,舍弃了踢脚线,这样整个空间看起来更为流畅
02_餐厅
餐厅改造
03_卧室
卧室改造
04_厨房
厨房改造
05_卫生间
卫生间改造
免费预约
已有
1167人
下单。预约短信将发您手机上!
你可能还喜欢以下作品
现代简约 | 两房
半开放式厨房,完美解决油烟问题
8
现代简约 | 两房
3.5㎡ 卫生间将洗手盆外置
7
日式 | 其它
4㎡迷你卫生间竟然做了3分离
9
法式 | 两房
老破厨房爆改,复古绿绝绝子!
23
预约
分享
收藏
返回顶部
报名成功
复制成功
请使用浏览器自带的“分享”功能
可以把作品分享到微信及朋友圈
微信好友
微信朋友圈
新浪微博
QQ空间
链接复制
取消
按钮
预约提醒
亲爱的会员
您**********的号码
今天已预约过20个商家已达到上限
请明天再来!