59㎡老破小变身最强收纳狂魔

6813人3 人2021-05-02 发布
美式・两房・59㎡・全包11万
00_概述
  • 业主情况
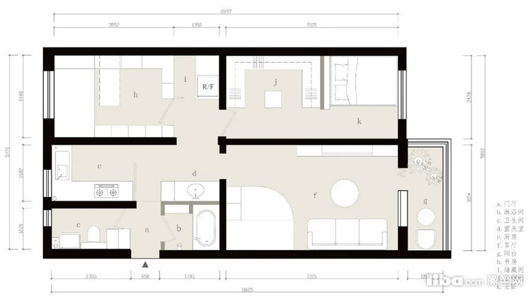
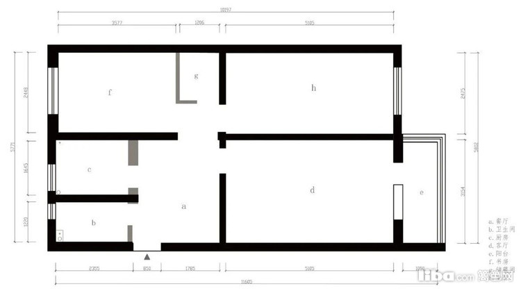
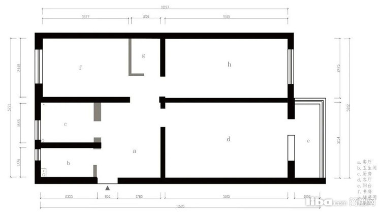
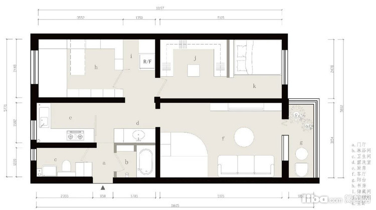
    老房子翻新,59㎡小两居,全屋几乎都是承重墙
  • 装修要求
    保持两房不变,增加足够多的收纳、卫浴三分离、衣帽间和洗衣房。
  • 设计师
    陈建磊
  • 设计理念
    根据业主的需求进行空间合理布局和规划设计
  • 01_客厅
    最强全屋收纳,榨干每一平米

    客厅打了一整面墙的电视柜,收纳屋主的各种路由器、游戏主机、游戏盘......

    为猫打造的活动空间也是结合收纳功能,承担大容量储物功能。

    客厅到厨房的走廊区域藏了一个小储物间,冰箱旁边留出来的的空间,收纳家里的清洁工具和其他杂物。

  • 02_餐厅
    餐厅
  • 03_卧室
    狭长卧室里造出一个步入式衣帽间,床铺下也全是抽屉,可以收纳备用床品和清洁用品。
  • 04_厨房
    L型厨房
  • 05_卫生间
    空间大挪移,实现卫生间三分离

    设计师把洗手台和淋浴房外置,原来的2.8㎡狭长整条仅用作如厕和洗衣房,这样使用就宽敞多了。

    卫生间旁边原来是一个无光小客厅,设计师把它划归卫生间使用,隔出淋浴房,洗手台就背靠淋浴房的隔墙摆放。

  • 06_其它
    走廊
免费预约
已有1167人下单。预约短信将发您手机上!
复制成功
请使用浏览器自带的“分享”功能
可以把作品分享到微信及朋友圈
取消
预约提醒
亲爱的会员您**********的号码
今天已预约过20个商家已达到上限
请明天再来!