|•泰晤士小镇 ‖New

940人0 人2020-04-13 发布
美式・三房・110㎡・半包14.4万・设计费0.8万
00_概述
  • 业主情况
    影视工作者
  • 装修要求
    3房
  • 设计理念
    对风格的概念几乎是模糊的。拥有诗意的栖居是生活追求的最高境界,不妨先从居家环境开始,一个诗意的环境,
  • 01_客厅
    客厅

    客厅1

    客厅2

    客厅3

    客厅4

    客厅5

    客厅6

    客厅7

    客厅8

    客厅9

    客厅10

    客厅11

  • 02_餐厅
    餐厅

    餐厅1

  • 03_卧室
    卧室

    卧室1

    卧室2

    卧室3

    卧室4

  • 04_厨房
    厨房厨房

    厨房1

    厨房2

    厨房3

    厨房4

  • 05_卫生间
    卫生间

    卫生间1

    卫生间2

  • 06_其它
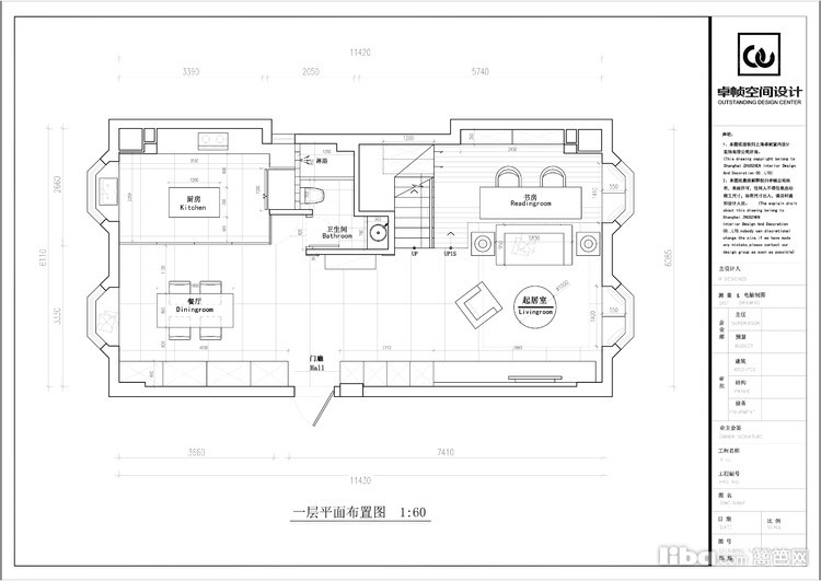
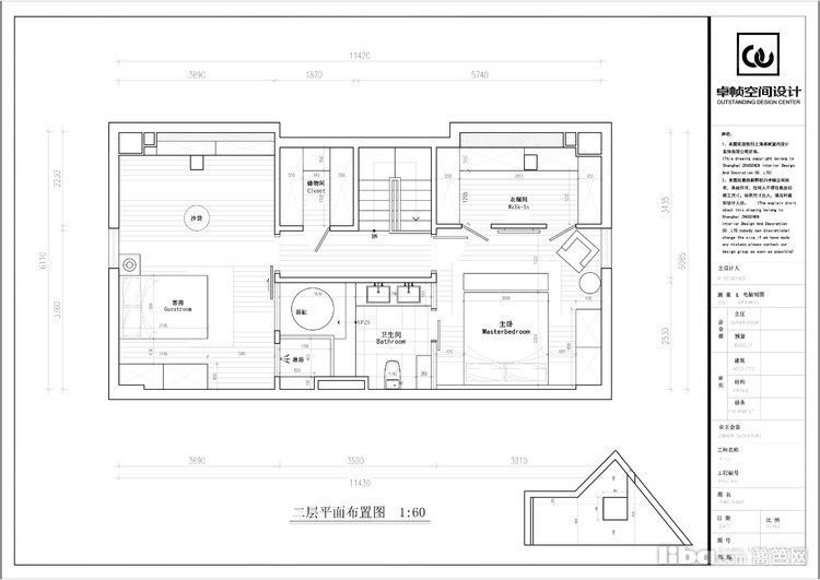
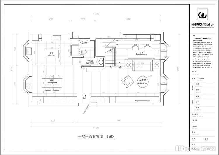
    平面图

    平面图1楼

    平面图2楼

免费预约
已有22088人下单。预约短信将发您手机上!
复制成功
请使用浏览器自带的“分享”功能
可以把作品分享到微信及朋友圈
取消
预约提醒
亲爱的会员您**********的号码
今天已预约过20个商家已达到上限
请明天再来!