现代轻奢

376人0 人2021-12-02 发布
低调奢华・三房・90㎡・全包33万・设计费1万
00_概述
  • 业主情况
    常住6口。夫妻二人,一儿一女,还有俩老人。
  • 装修要求
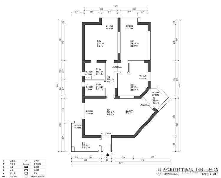
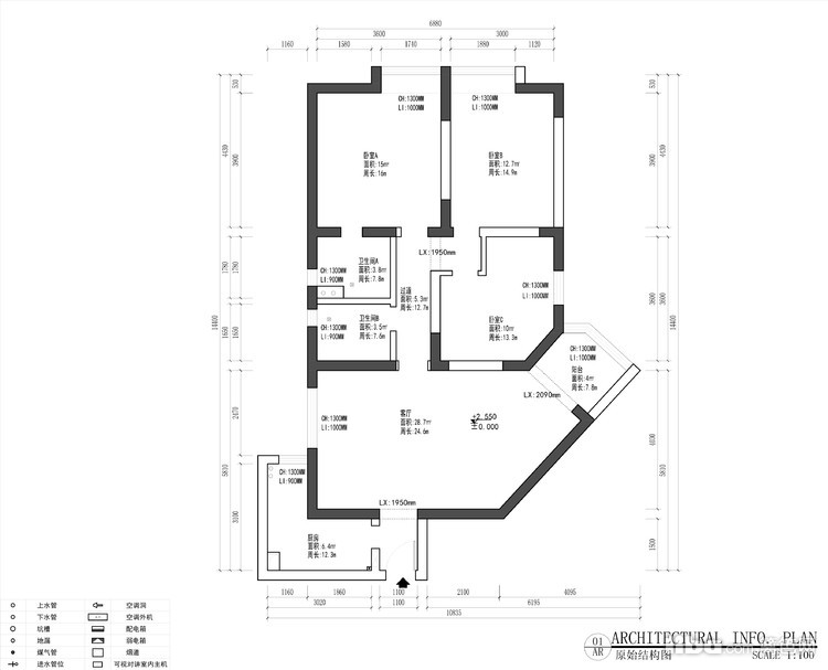
    人多储物要求大,房子光线不好,希望整体利用率高,主卫可以接受不要淋浴。
  • 设计师
    朱国庆
  • 设计理念
    室内设计的首要目标在于满足客户生活的基本需要
  • 01_客厅
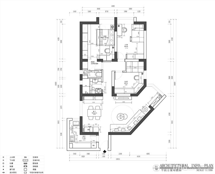
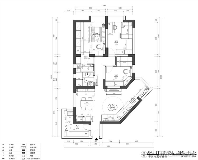
    沙发背景尽头设计垭口,垭口假门头到顶,收口背景墙

    客厅沙发因为斜面不好布置。做连体背景墙,放置两个沙发,中间放置一个落地灯。让客厅形成一个整体

  • 02_餐厅
    斜客厅客餐厅采光,吊顶融入灯带设计,做整体吊顶,增加室内光源,拉大视觉
  • 03_卧室
    主卧室衣柜不好布置,主卧室床头对着卫生间门。 原主卧门从主卫进,主卫取消淋浴房,设置台盆马桶,主卧做内玄关,这样就可以把主卧的床头换个方向,也解决了原主卧床对着卫生间门的问题

    主卧

    主卧

    主卧

    主卧

    主卧

    主卧

    女儿房

    女儿房

    女儿房

  • 04_厨房
    厨房台面利用率不高。把冰箱放在餐厅区域,释放厨房空间
  • 05_卫生间
    卫生间

    客卫

    客卫

    客卫

    客卫

    主卫

    主卫

  • 06_阳台露台
    阳台
  • 07_其它
    改变主卧进门方向,在主卧原进门处设计玄关背景

    原始户型

    改造后

    过道

    过道

免费预约
已有52人下单。预约短信将发您手机上!
复制成功
请使用浏览器自带的“分享”功能
可以把作品分享到微信及朋友圈
取消
预约提醒
亲爱的会员您**********的号码
今天已预约过20个商家已达到上限
请明天再来!