轻奢·现代

2343人1 人2018-12-02 发布
现代简约・两房・73㎡・半包6.2万・设计费0.46万
00_概述
  • 业主情况
    未婚情侣
  • 装修要求
    风格低调奢华有设计感。
  • 设计师
    王锦宇
  • 设计理念
    对于设计有着不断探索,追求一种真实与想象空间结合的成果,适用各种实质的物料,光线与影像的新技术做法;
  • 01_客厅
    笔直的线条搭配金属感装饰 突出屋主想要的低调奢华感
  • 02_卧室
    现代简约风格 合理利用有限的空间,细心的考虑到诸多细节问题。

    温馨浪漫的布置让休息空间更多一点爱

  • 03_书房
    现代简约风格 合理利用有限的空间,细心的考虑到诸多细节问题。

    吧台式餐桌 小小的二人世界

    模样奇特的装饰品,轻松的装点空间。

  • 04_其它
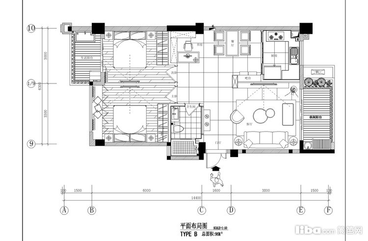
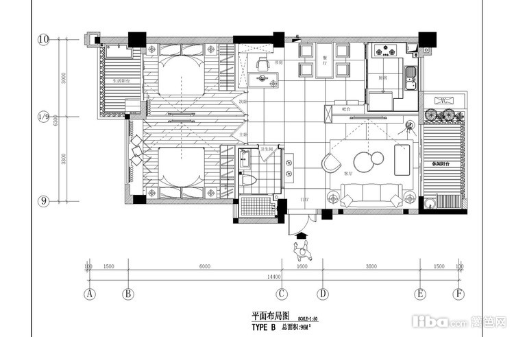
    标准的南北两房户型,空间占有率极高,相对而言,比较难创造出独特的设计。本方案,设计充分利用暗色调,不失为一种中庸的做法。
免费预约
已有2474人下单。预约短信将发您手机上!
复制成功
请使用浏览器自带的“分享”功能
可以把作品分享到微信及朋友圈
取消
预约提醒
亲爱的会员您**********的号码
今天已预约过20个商家已达到上限
请明天再来!