新宸云麓

348人0 人2019-09-02 发布
欧式・三房・110㎡・半包12万・设计费0.2万
00_概述
  • 业主情况
    本案是一家四口居住。
  • 装修要求
    简约,温馨,有家的感觉
  • 设计师
    张红军
  • 设计理念
    设计师不仅做到空间的美化还要为业主提供优良的生活品质。
  • 01_客厅
    客厅,快节奏生活状态中的我们,拥有一个可以缓解压力的居家环境,显得尤为重要。

    客厅,快节奏生活状态中的我们,拥有一个可以缓解压力的居家环境,显得尤为重要。

    客厅,快节奏生活状态中的我们,拥有一个可以缓解压力的居家环境,显得尤为重要。

    客厅,快节奏生活状态中的我们,拥有一个可以缓解压力的居家环境,显得尤为重要。

    客厅,快节奏生活状态中的我们,拥有一个可以缓解压力的居家环境,显得尤为重要。

    客厅,快节奏生活状态中的我们,拥有一个可以缓解压力的居家环境,显得尤为重要。

    客厅,快节奏生活状态中的我们,拥有一个可以缓解压力的居家环境,显得尤为重要。

    客厅,快节奏生活状态中的我们,拥有一个可以缓解压力的居家环境,显得尤为重要。

    客厅,快节奏生活状态中的我们,拥有一个可以缓解压力的居家环境,显得尤为重要。

  • 02_餐厅
    餐厅

    餐厅

    餐厅

  • 03_卧室
    卧室

    主卧

    主卧

    主卧

    男孩房

    男孩房

    男孩房

    女孩房

    女孩房

    女孩房

    女孩房

  • 04_厨房
    厨房

    厨房

  • 05_卫生间
    卫生间

    卫生间

    卫生间

  • 06_阳台露台
    休闲区

    休闲区

    休闲区

  • 07_其它
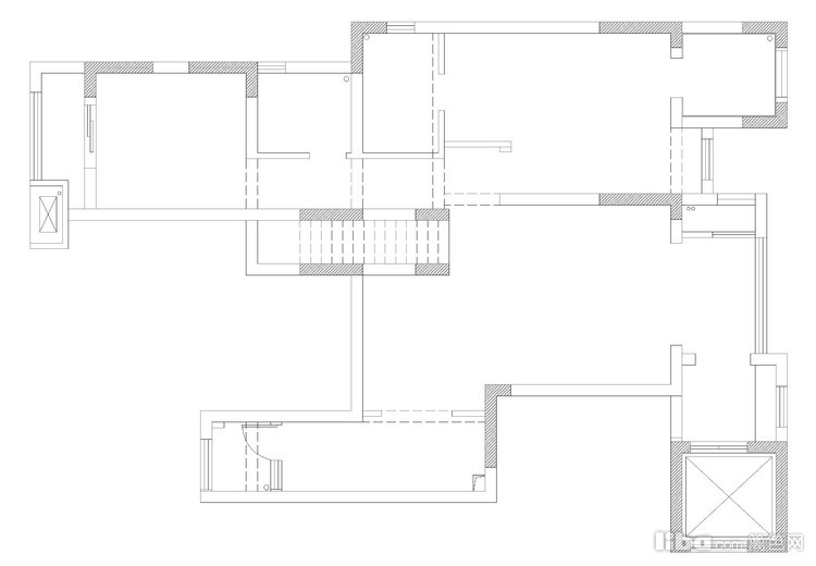
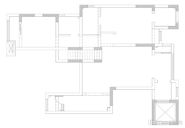
    平面图

    平面图

    设计平面图

免费预约
已有50人下单。预约短信将发您手机上!
复制成功
请使用浏览器自带的“分享”功能
可以把作品分享到微信及朋友圈
取消
预约提醒
亲爱的会员您**********的号码
今天已预约过20个商家已达到上限
请明天再来!