生活

5849人20 人2018-07-19 发布
混搭・两房・80㎡・全包14万・设计费4500万
00_概述
  • 业主情况
    本案是业主来上海拼搏自购的第一套房,对这个家有着许多的憧憬和期许。
  • 装修要求
    男业主喜欢北欧风,女主人喜欢酷酷的工艺风,家的格局不太好,希望设计师提高收纳,两者风格结合
  • 设计师
    陈宾宾
  • 设计理念
    让居住舒适与收纳储物达到平衡。增加美感的同时兼顾功能。不浪费空间,解决格局难题。
  • 01_客厅
    本案是业主来上海拼搏自购的第一套房,对这个家有着许多的憧憬和期许,男业主喜欢北欧风,女主人喜欢酷酷的工艺风,那么让我们一起来看看,设计师是如何将两者结合,打造出属于他们的生活家。

    设计师与业主合影

    白砖的肌理质感作为沙发背景墙,与浅胡桃色的地板,简洁的电视墙相互对比调和。

    温和自然又有岁月吊顶斑驳感,开启进门的吊灯与沙发背景的轨道灯,客厅的氛围温馨小资

  • 02_餐厅
    原先的厨房位置保留,往客餐厅方向里面收,多出来一个西厨区。简单的三口之家,一个吧台足矣。
  • 03_卧室
    卧室满满的复古风-铁艺的元素,红砖文化,原阳台区改成了小地台,供女主人平时练瑜伽用,也可以增加储物空间。

    原空间较宽,设计减少卫生间及主卧的空间,增加一个卫生间及衣帽间

    北欧不是简约就好,心中所喜风格,就像你爱的人一样,总是最好的,采用的淡淡的粉色,来填满整个爱的小屋。

    整体色调平稳而富有张力。淡灰色的整体色调,点缀红砖文化,简约而不简单

  • 04_厨房
    采用半墙式结构配上铁艺框架玻璃,功能区域分割,中厨的油腻区,西厨的烘培区,配上一面黑板漆,冲满了生动及富有生活。
  • 05_卫生间
    格局有所改动,减少卫生间的空间,增加出一间比较舒服的衣帽间,在把干区做到了过道区,减少了过道浪费的空间,工业的肌理配上生态的绿色,充满了岁月的痕迹
  • 06_阳台露台
    采用水泥地坪防腐木的生态做法,还特意做了个储物柜可平时坐坐户外烧烤等等。小湖水景观增加生活的情趣。
  • 07_其它
    门区没有做太多的固定式的墙面装饰面,采用的是成品的工业鞋柜,简单的色调,灵活的摆放。

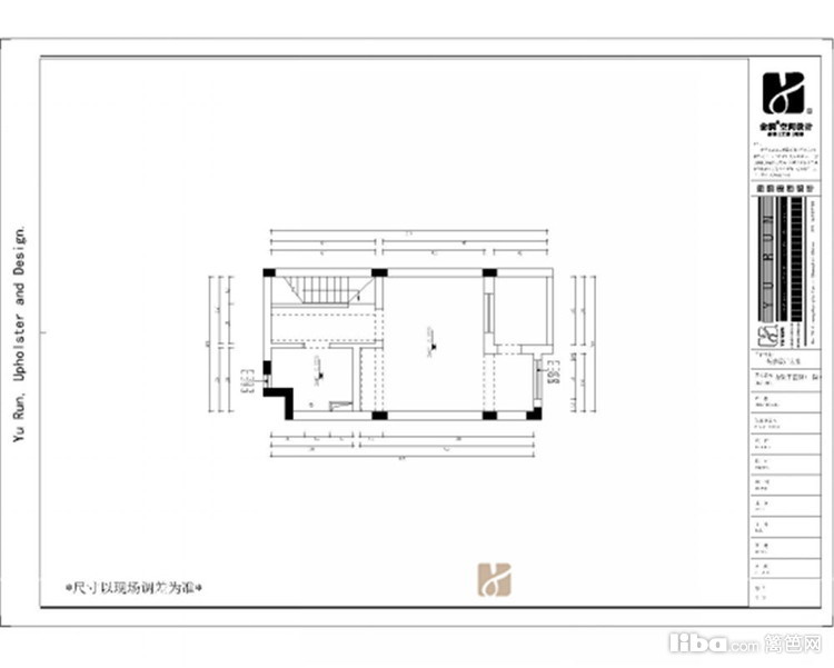
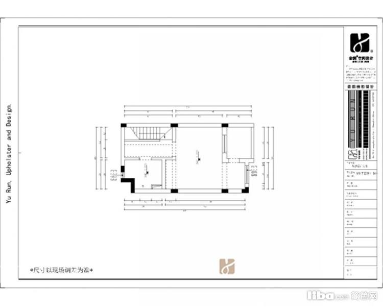
    一楼原始户型图

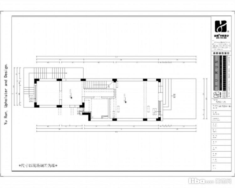
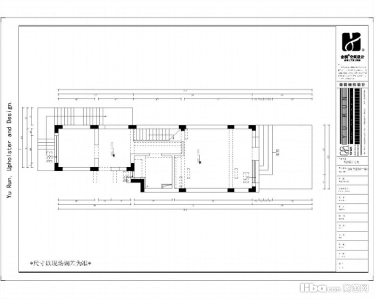
    二楼原始户型图

免费预约
已有5536人下单。预约短信将发您手机上!
复制成功
请使用浏览器自带的“分享”功能
可以把作品分享到微信及朋友圈
取消
预约提醒
亲爱的会员您**********的号码
今天已预约过20个商家已达到上限
请明天再来!