装修首页
A+翻新设计
作品库
228平灰色轻奢风
A+翻新设计
免费预约
收藏
分享
228平灰色轻奢风
603人
0 人
2018-08-23 发布
现代简约・四房・228㎡・半包21.9万
00_概述
业主情况
自营业主
装修要求
合理规划利用空间
设计理念
以业主需求为导向设计划分区域
01_客厅
低调奢华的现代风格,现代品质生活的驾驭能力,对户型实际合理的分析和统筹
02_餐厅
色彩的搭配组合很高端
03_卧室
整体视觉效果靠色彩搭配和组合:红色、咖啡色、黑色、白色、蓝色’
04_书房
光线与色彩的使用
05_卫生间
卫生间也同样简约大气
06_其它
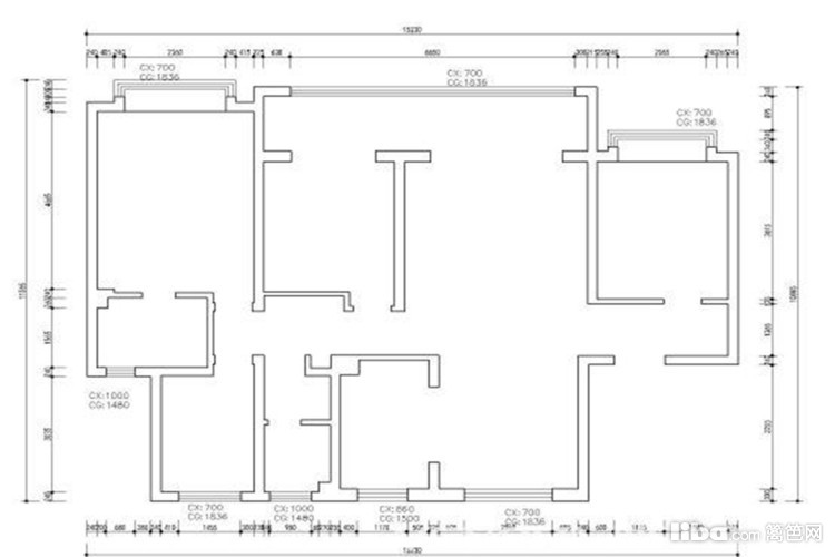
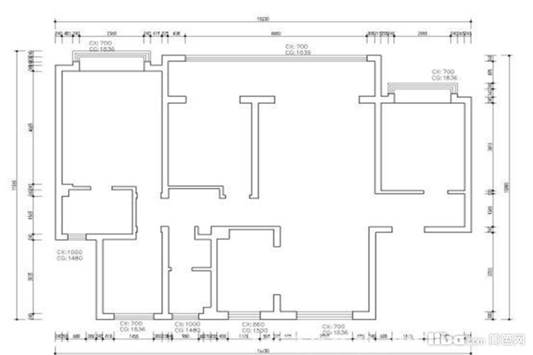
原始户型图
免费预约
已有
1096人
下单。预约短信将发您手机上!
你可能还喜欢以下作品
现代简约 | 一房
摘一片春意献给我的温馨港湾
17
现代简约 | 一房
单身公寓的花式美颜
12
美式 | 两房
恒盛豪庭样板房实景新作
14
现代简约 | 一房
80平老房翻新现代简约
9
预约
分享
收藏
返回顶部
报名成功
复制成功
请使用浏览器自带的“分享”功能
可以把作品分享到微信及朋友圈
微信好友
微信朋友圈
新浪微博
QQ空间
链接复制
取消
按钮
预约提醒
亲爱的会员
您**********的号码
今天已预约过20个商家已达到上限
请明天再来!