89平极简,办公居家一套房

6063人2 人2018-08-30 发布
现代简约・两房・89㎡・全包13.3万
00_概述
  • 业主情况
    IT程序员
  • 装修要求
    功能至上
  • 设计理念
    每个角落都充分利用,家居办公一体化
  • 01_客厅
    客厅:观影、藏书、办公,设计师通过颜色和线条的把控,让整个空间显得开阔且简介

    客厅右侧是通顶的书柜,白色的柜面降低了柜子的存在感,书柜如同一堵背景墙,墙里放着海量的书

    书柜陈列架采用错落的设计,打破传统的平衡和对称,为空间增添了一份灵动活泼

    工作区和阳台连接处装了电动幕布,沙发选择了轻便的款式,轻松打造舒适的家庭影院

  • 02_餐厅
    餐厅吊灯由两个射灯组成,射灯通过灯罩提供柔光照明,下面的射灯直射桌面营造浪漫氛围,不仅造型美观独特而且非常实用
  • 03_卧室
    卧室墙面的莫兰迪色系乳胶漆,配合灰色的木质饰板,营造舒适的睡眠环境
  • 04_厨房
    开放式厨房,业主饮食口味清淡少油少盐
  • 05_其它
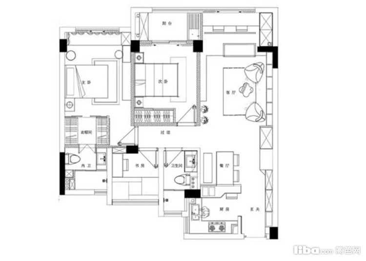
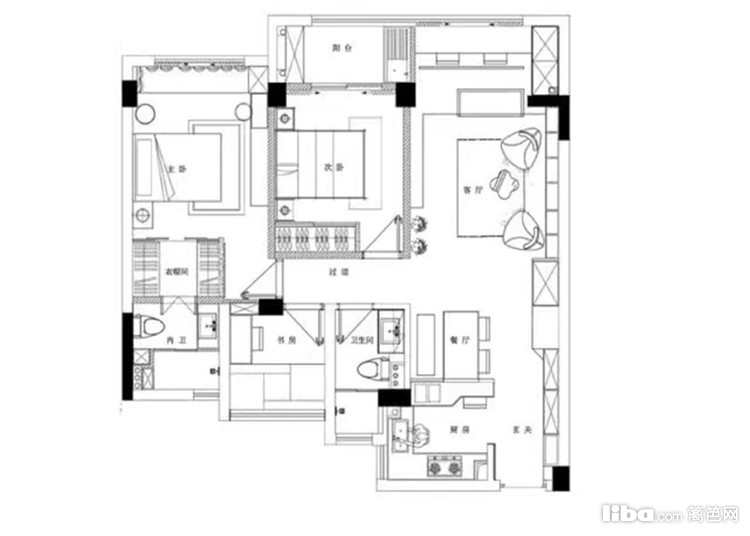
    户型布局图,及卧室进门处用油画做装饰,墙角黑色的小狗雕塑,用来给家里的狗狗小朋友作伴
免费预约
已有1096人下单。预约短信将发您手机上!
复制成功
请使用浏览器自带的“分享”功能
可以把作品分享到微信及朋友圈
取消
预约提醒
亲爱的会员您**********的号码
今天已预约过20个商家已达到上限
请明天再来!