只有50平?不像不像。。
        	664人0
人2018-09-05 发布
 			现代简约・两房・50㎡・全包7.1万
 			
 			
	 		
	 			
	                        - 
	                            
01_客厅
	                            经过改造,一进门看到的不再是昏暗的客厅,而是一条长约3米的门厅走道,安置了4扇仿大理石纹亮面门柜,用来放鞋,容量非常宽裕。
	                                
	                                
	                                    
	                                        两侧深海蓝,给原本的暗调中增添质感
	                                 
	                                
	                                    
	                                        客厅的用色和门厅一脉相莲,大胆的用色,让人感觉耳目一新
	                                 
	                                
	                                    
	                                        双开门冰箱体积过大,只好放在客厅,索性房间不大,偶尔拿取不算费事
	                                 
	                                
	                                    
	                                        电视柜和展示柜皆为定制,液晶下的线路都藏在电视柜中
	                                 
	                         
	                        - 
	                            
02_餐厅
	                            颇有希腊色彩的餐厅部分
	                                
	                         
	                        - 
	                            
03_卧室
	                            轻奢而香艳的卧室
	                                
	                                
	                                
	                         
	                        - 
	                            
04_厨房
	                            U型的小厨房,白色烤漆面板+灰黑台面,干净整洁,全是实用功能的设计
	                                
	                         
	                        - 
	                            
05_卫生间
	                            长虹玻璃隔断将干湿分离的浴室略做遮挡,玻璃比常见的木质花格看起来轻盈几分,打扫起来比较便捷
	                                
	                                    
	                                        地砖和墙砖选用和厨房同款的仿自然色瓷砖,简洁大气,浑然一体
	                                 
	                                
	                                    
	                                        连体台盆和隔断之间,留出27厘米的间距放窄身脏衣服篮,金色铁艺多了一份小奢味道
	                                 
	                         
	                        - 
	                            
06_阳台露台
	                            阳台周边上下都做了防潮处理,并贴上瓷砖隔绝湿气,摆上洗衣机烘干机,成为硕大的洗衣工作间
	                                
	                                
	                                    
	                                        一旁再放上小推车,摆些花花草草,才不负这大号天光
	                                 
	                         
	                        - 
	                            
07_其它
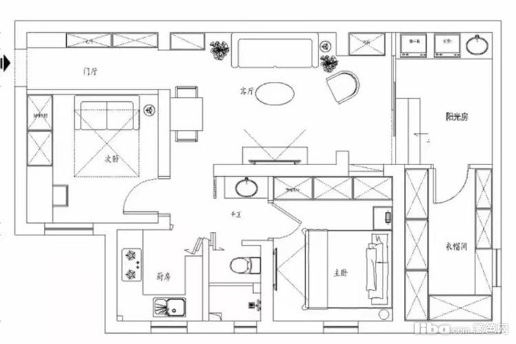
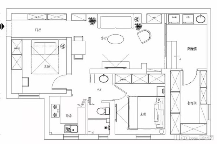
	                            户型布局图,及衣帽间。原本和阳光房通告的储藏室,被设计师改为层高2米的衣帽间,压缩层高也有防潮的目的
	                                
	                                
	                                
	                                    
	                                        过季的衣服,不常用的行李箱,所有不太美观的杂物,统统往这里塞
	                                 
	                         
	 			
	 		 
	 		
	 			免费预约
	 			已有1096人下单。预约短信将发您手机上!