150平复式简美风

937人1 人2018-09-29 发布
美式・三房・150㎡・半包12.5万・设计费0.5万
00_概述
  • 业主情况
    公司的老总
  • 装修要求
    半包,简约美式风格
  • 设计理念
    充分利用顶层的户型优势,每个空间都拥有超级棒的采光和视野
  • 01_客厅
    客厅电视墙中心位置贴上壁纸,四周采用边框收边让电视墙看起来更有层次感,实木电视柜与茶几搭配,搭配舒适的布艺沙发,让这个客厅显得有档次又现代大方

    为了避免看电视反光的问题,窗帘选择双层窗帘,可以根据灯光环境来调节窗帘的开关程度

    沙发靠窗的摆放的格局,让这个尴尬的客厅也显得更加的高档大方

  • 02_餐厅
    客餐厅都有大面积的窗户,所以餐厅自然也是在一个明亮宽敞的空间内,舒适放松

    玄关侧边就是厨房,再往里则是客餐厅区域,布局相当的大方舒适

  • 03_卧室
    主卧有个独立的衣帽间,这个空间在二层,是带有门的封闭空间,次卧拥有大面积的全景窗户,衣柜接近窗户位置,做了一个小书桌,可工作又可瞻望远处风景
  • 04_书房
    榻榻米房带有书桌和卧室的功能,大面积的窗户+顶层,难以置信的视觉感受
  • 05_厨房
    大面积的窗户,让厨房拥有丰富的采光和通风,让厨房保持明亮又干爽舒适
  • 06_卫生间
    卫生间以玻璃隔断作为干湿分离,整体舒适宽松的格局,非常舒服
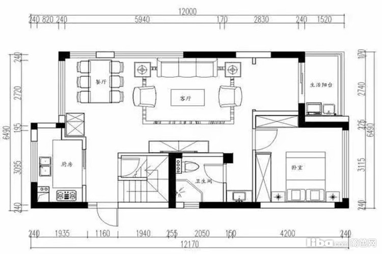
  • 07_其它
    户型布局图

    衣帽间

    厨房对面是楼梯间,楼梯下的空间被巧妙的利用起来当做储物间

免费预约
已有1096人下单。预约短信将发您手机上!
复制成功
请使用浏览器自带的“分享”功能
可以把作品分享到微信及朋友圈
取消
预约提醒
亲爱的会员您**********的号码
今天已预约过20个商家已达到上限
请明天再来!