书香世家

307人0 人2023-06-07 发布
现代简约・三房・118㎡・半包10万・设计费1万
00_概述
  • 业主情况
    男女主人都是比较喜欢看书的,尤其女主人是老师,因为家里东西太多,所以一直没有下定决心
  • 装修要求
    风格希望简约有格调,家中三个成人居住,父母偶尔住下。所以收纳一定要多。
  • 设计师
    钱浩
  • 设计理念
    全屋采用无主灯设计 全屋设计超大收纳 房间内定制悬空电视柜和梳妆台好清理
  • 01_客厅
    设计师在沙发背景墙后还有对面的电视背景墙上,增加了一组顶天立地的收纳柜,提供超25个行李箱大小的收纳空间。

    不同尺寸的柜体分隔,满足多种收纳需求,也为空间增添了一丝趣味

    减少大体量家具自带的僵硬刻板感,沙发背景柜做几个镂空设计,既可以装饰,又可以收纳。

    轻奢风客厅,深灰(沙发背景柜)+浅灰(地砖)+白(电视背景柜),空间的层侧干和颜色过渡非常舒适温馨,

    米白色沙发大气温馨。而撞色的窗帘则给家带来一丝“颜色”。

  • 02_餐厅
    餐厅最大的亮点就是洗手台和餐边柜了,白是餐厅的主色调,大理石与布艺质搭配起来,视觉温度刚刚好。

    可视门禁嵌入餐边柜空间更整齐,同时提供了超大的收纳空间

    家里所有东西都可以完美入柜,茶色的玻璃柜门完美实现了男主人对藏酒的展示。

  • 03_卧室
    三个卧室都很大,没有特别的区分主卧和次卧。

    卧室A的设计细节,主卧的装饰吊灯,完全可以代替台灯,还很有艺术感。

    梳妆台和电视柜,高度错落的感觉也不错,

    次卧的衣帽间是一个小一点的步入式衣帽间,用长虹玻璃做门,很有艺术感。

    卧室C 这是儿子的房间

  • 04_厨房
    厨房空间比较大,但也没有做满橱柜,够用即可,无需填满空间。这个设计对于大厨房和狭长型厨房都非常实用。集成灶的颜值也是不错,关于集成灶和分体灶如何选择这块,下次我们再介绍。

    橱柜上柜用白色烤漆柜门,下柜仿石纹柜门和地砖颜色接近,还是遵循过渡色。

    切菜区上柜底部增加了灯带(这个设计太赞)

  • 05_其它
    过道做的也是颇有特色,定制柜完全根据设计师硬装图纸制作,效果保持设计与落地一致。

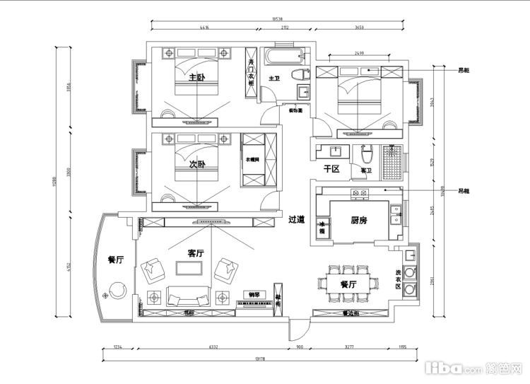
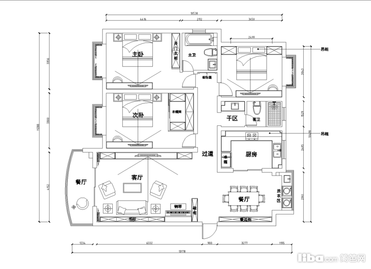
    户型图

免费预约
已有865人下单。预约短信将发您手机上!
复制成功
请使用浏览器自带的“分享”功能
可以把作品分享到微信及朋友圈
取消
预约提醒
亲爱的会员您**********的号码
今天已预约过20个商家已达到上限
请明天再来!